比べて、選べる。リフォーム会社紹介サイト「ホームプロ」

会員ページでは、お申込みいただいた内容に対応できるリフォーム会社を紹介しています。各社の会社情報、評価・クチコミの閲覧や、メッセージのやりとり(商談)ができます。

閉じる
  1. リフォームTOP
  2. 富山県
  3. 高岡市
  4. 石友リフォームサービス株式会社
  5. 閉鎖感を一新。明るく広がるマンションフルリフォーム
事例一覧へ戻る

閉鎖感を一新。明るく広がるマンションフルリフォーム

建物のタイプ マンション 価格 1,000万円
築年数 21〜25年 工期 3ヶ月以上
竣工年月日 構造 RC造
施工地 埼玉県 ふじみ野市 リフォーム箇所 浴室・バストイレ洗面リビングダイニング洋室玄関収納収納
家族構成 夫婦

詳細情報

[テーマ]全面改装 、 間取り変更・スケルトン 、 リノベーション

お客さまのご要望

築25年のマンションにお住まいの50代ご夫婦より、「これからの暮らしをより快適にしたい」とご相談をいただきました。

リフォーム会社のご提案

閉鎖的だったキッチンを開放的にしたいほか、狭さを感じていた玄関や廊下の幅を広げ、和室をLDKへ取り込むことでゆったり過ごせる空間をご希望。また、壁紙のカビや結露対策、窓枠の見直し、収納を一か所にまとめる工夫等、日々の使い勝手と快適性を高めるリフォームをご要望されていました。水回りは、4点すべての交換をご希望で、トイレの配置変更や音漏れ対策、清掃しやすい設備選びにもこだわられました。さらに、床暖房のフローリング張替え(突板希望)、床下収納の撤去・点検口の縮小、トイレスペースの改善、電動シャッターのスイッチ撤去等、細部まで暮らしに寄り添った見直しを行いたいとのことでした。

Before

Before

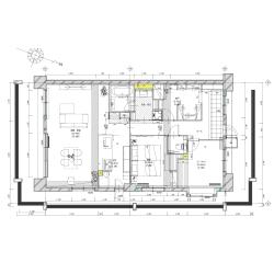
施工前の間取り

After

After

今回のリフォームでは、シンプルで上質なコーディネートにお客様のセンスが光る仕上りとなりました。光がたっぷり入る開放的なLDKで、ゆったりと心地良い時間をお過ごしいただければ嬉しいです。

換気乾燥暖房機付きで、1年中快適な浴室

換気乾燥暖房機付きで、1年中快適な浴室
建物のタイプ マンション
価格 120万円(単独工事をする場合の概算です)
築年数 21〜25年
工期(全体) 3ヶ月以上
面積  
その他採用機器・設備
施工地 埼玉県 ふじみ野市
家族構成 夫婦

詳細情報:

[テーマ] 省エネ 、 明るく広々 、 断熱・気密 / メーカー:指定なし / サイズ:指定なし / カラー:白

リフォーム会社のご提案

閉鎖的だったキッチンを開放的にしたいほか、狭さを感じていた玄関や廊下の幅を広げ、和室をLDKへ取り込むことでゆったり過ごせる空間をご希望。また、壁紙のカビや結露対策、窓枠の見直し、収納を一か所にまとめる工夫等、日々の使い勝手と快適性を高めるリフォームをご要望されていました。水回りは、4点すべての交換をご希望で、トイレの配置変更や音漏れ対策、清掃しやすい設備選びにもこだわられました。さらに、床暖房のフローリング張替え(突板希望)、床下収納の撤去・点検口の縮小、トイレスペースの改善、電動シャッターのスイッチ撤去等、細部まで暮らしに寄り添った見直しを行いたいとのことでした。

広くなったトイレ

広くなったトイレ
建物のタイプ マンション
価格 100万円(単独工事をする場合の概算です)
築年数 21〜25年
工期(全体) 3ヶ月以上
面積  
その他採用機器・設備
施工地 埼玉県 ふじみ野市
家族構成 夫婦

詳細情報:

[テーマ] 収納充実 、 明るく広々 、 デザイン重視 / メーカー:指定なし / 種別:指定なし / カラー:白 / カラー:茶 / 温水洗浄便座:有り / 節水(6リットル以下):有り / 別置き手洗い器:有り

リフォーム会社のご提案

閉鎖的だったキッチンを開放的にしたいほか、狭さを感じていた玄関や廊下の幅を広げ、和室をLDKへ取り込むことでゆったり過ごせる空間をご希望。また、壁紙のカビや結露対策、窓枠の見直し、収納を一か所にまとめる工夫等、日々の使い勝手と快適性を高めるリフォームをご要望されていました。水回りは、4点すべての交換をご希望で、トイレの配置変更や音漏れ対策、清掃しやすい設備選びにもこだわられました。さらに、床暖房のフローリング張替え(突板希望)、床下収納の撤去・点検口の縮小、トイレスペースの改善、電動シャッターのスイッチ撤去等、細部まで暮らしに寄り添った見直しを行いたいとのことでした。

収納が充実した洗面脱衣室

収納が充実した洗面脱衣室
建物のタイプ マンション
価格 50万円(単独工事をする場合の概算です)
築年数 21〜25年
工期(全体) 3ヶ月以上
面積  
その他採用機器・設備
施工地 埼玉県 ふじみ野市
家族構成 夫婦

詳細情報:

[テーマ] 収納充実 、 デザイン重視 、 断熱・気密 / メーカー:指定なし / 間口:指定なし / カラー:白 / カラー:ベージュ

リフォーム会社のご提案

閉鎖的だったキッチンを開放的にしたいほか、狭さを感じていた玄関や廊下の幅を広げ、和室をLDKへ取り込むことでゆったり過ごせる空間をご希望。また、壁紙のカビや結露対策、窓枠の見直し、収納を一か所にまとめる工夫等、日々の使い勝手と快適性を高めるリフォームをご要望されていました。水回りは、4点すべての交換をご希望で、トイレの配置変更や音漏れ対策、清掃しやすい設備選びにもこだわられました。さらに、床暖房のフローリング張替え(突板希望)、床下収納の撤去・点検口の縮小、トイレスペースの改善、電動シャッターのスイッチ撤去等、細部まで暮らしに寄り添った見直しを行いたいとのことでした。

和室だったリビング

和室だったリビング
建物のタイプ マンション
価格 100万円(単独工事をする場合の概算です)
築年数 21〜25年
工期(全体) 3ヶ月以上
面積  
その他採用機器・設備
施工地 埼玉県 ふじみ野市
家族構成 夫婦

詳細情報:

[テーマ] 全面改装 、 間取り変更・スケルトン 、 明るく広々 / 間取り変更:有り / 素材:指定なし / 広さ:指定なし / 和洋変更:和室→洋室

リフォーム会社のご提案

閉鎖的だったキッチンを開放的にしたいほか、狭さを感じていた玄関や廊下の幅を広げ、和室をLDKへ取り込むことでゆったり過ごせる空間をご希望。また、壁紙のカビや結露対策、窓枠の見直し、収納を一か所にまとめる工夫等、日々の使い勝手と快適性を高めるリフォームをご要望されていました。水回りは、4点すべての交換をご希望で、トイレの配置変更や音漏れ対策、清掃しやすい設備選びにもこだわられました。さらに、床暖房のフローリング張替え(突板希望)、床下収納の撤去・点検口の縮小、トイレスペースの改善、電動シャッターのスイッチ撤去等、細部まで暮らしに寄り添った見直しを行いたいとのことでした。

明るいダイニング

明るいダイニング
建物のタイプ マンション
価格 300万円(単独工事をする場合の概算です)
築年数 21〜25年
工期(全体) 3ヶ月以上
面積  
その他採用機器・設備
施工地 埼玉県 ふじみ野市
家族構成 夫婦

詳細情報:

[テーマ] 全面改装 、 間取り変更・スケルトン 、 リノベーション / 素材:指定なし / 広さ:指定なし

お客さまのご要望

築25年のマンションにお住まいの50代ご夫婦より、「これからの暮らしをより快適にしたい」とご相談をいただきました。

リフォーム会社のご提案

閉鎖的だったキッチンを開放的にしたいほか、狭さを感じていた玄関や廊下の幅を広げ、和室をLDKへ取り込むことでゆったり過ごせる空間をご希望。また、壁紙のカビや結露対策、窓枠の見直し、収納を一か所にまとめる工夫等、日々の使い勝手と快適性を高めるリフォームをご要望されていました。水回りは、4点すべての交換をご希望で、トイレの配置変更や音漏れ対策、清掃しやすい設備選びにもこだわられました。さらに、床暖房のフローリング張替え(突板希望)、床下収納の撤去・点検口の縮小、トイレスペースの改善、電動シャッターのスイッチ撤去等、細部まで暮らしに寄り添った見直しを行いたいとのことでした。

ご主人様のオーディオルーム

ご主人様のオーディオルーム
建物のタイプ マンション
価格 50万円(単独工事をする場合の概算です)
築年数 21〜25年
工期(全体) 3ヶ月以上
面積  
その他採用機器・設備
施工地 埼玉県 ふじみ野市
家族構成 夫婦

詳細情報:

[テーマ] 全面改装 、 間取り変更・スケルトン 、 デザイン重視 / 用途:趣味の部屋 / 間取り変更:有り / 素材:指定なし / 広さ:指定なし

リフォーム会社のご提案

閉鎖的だったキッチンを開放的にしたいほか、狭さを感じていた玄関や廊下の幅を広げ、和室をLDKへ取り込むことでゆったり過ごせる空間をご希望。また、壁紙のカビや結露対策、窓枠の見直し、収納を一か所にまとめる工夫等、日々の使い勝手と快適性を高めるリフォームをご要望されていました。水回りは、4点すべての交換をご希望で、トイレの配置変更や音漏れ対策、清掃しやすい設備選びにもこだわられました。さらに、床暖房のフローリング張替え(突板希望)、床下収納の撤去・点検口の縮小、トイレスペースの改善、電動シャッターのスイッチ撤去等、細部まで暮らしに寄り添った見直しを行いたいとのことでした。

土間を広げた玄関

土間を広げた玄関
建物のタイプ マンション
価格 50万円(単独工事をする場合の概算です)
築年数 21〜25年
工期(全体) 3ヶ月以上
面積  
その他採用機器・設備
施工地 埼玉県 ふじみ野市
家族構成 夫婦

詳細情報:

[テーマ] 全面改装 、 間取り変更・スケルトン 、 リノベーション / メーカー:指定なし / 種別:指定なし / カラー:白 / カラー:黒 / 材質:指定なし

リフォーム会社のご提案

閉鎖的だったキッチンを開放的にしたいほか、狭さを感じていた玄関や廊下の幅を広げ、和室をLDKへ取り込むことでゆったり過ごせる空間をご希望。また、壁紙のカビや結露対策、窓枠の見直し、収納を一か所にまとめる工夫等、日々の使い勝手と快適性を高めるリフォームをご要望されていました。水回りは、4点すべての交換をご希望で、トイレの配置変更や音漏れ対策、清掃しやすい設備選びにもこだわられました。さらに、床暖房のフローリング張替え(突板希望)、床下収納の撤去・点検口の縮小、トイレスペースの改善、電動シャッターのスイッチ撤去等、細部まで暮らしに寄り添った見直しを行いたいとのことでした。

リビングに設けたパントリー

リビングに設けたパントリー
建物のタイプ マンション
価格 50万円(単独工事をする場合の概算です)
築年数 21〜25年
工期(全体) 3ヶ月以上
面積  
その他採用機器・設備
施工地 埼玉県 ふじみ野市
家族構成 夫婦

詳細情報:

[テーマ] 全面改装 、 間取り変更・スケルトン 、 収納充実 / 設置場所:ダイニング / 造作:有り

リフォーム会社のご提案

閉鎖的だったキッチンを開放的にしたいほか、狭さを感じていた玄関や廊下の幅を広げ、和室をLDKへ取り込むことでゆったり過ごせる空間をご希望。また、壁紙のカビや結露対策、窓枠の見直し、収納を一か所にまとめる工夫等、日々の使い勝手と快適性を高めるリフォームをご要望されていました。水回りは、4点すべての交換をご希望で、トイレの配置変更や音漏れ対策、清掃しやすい設備選びにもこだわられました。さらに、床暖房のフローリング張替え(突板希望)、床下収納の撤去・点検口の縮小、トイレスペースの改善、電動シャッターのスイッチ撤去等、細部まで暮らしに寄り添った見直しを行いたいとのことでした。

便利な大容量ファミリークローク

便利な大容量ファミリークローク
建物のタイプ マンション
価格 50万円(単独工事をする場合の概算です)
築年数 21〜25年
工期(全体) 3ヶ月以上
面積  
その他採用機器・設備
施工地 埼玉県 ふじみ野市
家族構成 夫婦

詳細情報:

[テーマ] 全面改装 、 間取り変更・スケルトン 、 収納充実 / 設置場所:指定なし

リフォーム会社のご提案

閉鎖的だったキッチンを開放的にしたいほか、狭さを感じていた玄関や廊下の幅を広げ、和室をLDKへ取り込むことでゆったり過ごせる空間をご希望。また、壁紙のカビや結露対策、窓枠の見直し、収納を一か所にまとめる工夫等、日々の使い勝手と快適性を高めるリフォームをご要望されていました。水回りは、4点すべての交換をご希望で、トイレの配置変更や音漏れ対策、清掃しやすい設備選びにもこだわられました。さらに、床暖房のフローリング張替え(突板希望)、床下収納の撤去・点検口の縮小、トイレスペースの改善、電動シャッターのスイッチ撤去等、細部まで暮らしに寄り添った見直しを行いたいとのことでした。

リフォーム会社に対する施主の評価・クチコミ

デザインセンス(60代/男性)

3

仕上り自体は概ね満足できるものだったが工事の進め方には不満が残った。事前打合せと実施工の違い、引き渡し前のチエックの甘さ等で引っ越し(引き渡し)後にも修正や追工事に2か月以上掛かったのは残念であった。 床暖房の新設で追加費用となったが、2025年補助金の戻り分を請求金額から相殺してもらい楽であった。

この会社に決めた理由

営業のパースの提案とショールームがある会社だったので、イメージが湧きやすかった。 見積もりの際、写しをもらえたので、打ち合わせや工事になっても齟齬がないと思った。 床暖房設備の再利用前提もプラス面。諸費用は他社比較で高かったが、その分しっかり対応してもらえると思った。

このようなリフォームを実現できる
お近くのリフォーム会社を、複数社ご紹介!

よく似た事例

最近見た事例

このようなリフォームを実現できる
お近くのリフォーム会社を、複数社ご紹介!

事例一覧へ戻る
ページの
先頭へ