比べて、選べる。リフォーム会社紹介サイト「ホームプロ」

会員ページでは、お申込みいただいた内容に対応できるリフォーム会社を紹介しています。各社の会社情報、評価・クチコミの閲覧や、メッセージのやりとり(商談)ができます。

閉じる
  1. リフォームTOP
  2. 富山県
  3. 高岡市
  4. 石友リフォームサービス株式会社
  5. 家族とのコミュニケーションを楽しむキッチン
事例一覧へ戻る

家族とのコミュニケーションを楽しむキッチン

建物のタイプ 戸建住宅 価格 900万円
築年数 16〜20年 工期 3ヶ月以上
竣工年月日 構造 木造
施工地 埼玉県 さいたま市見沼区 リフォーム箇所 キッチン浴室・バストイレ洗面洋室収納
家族構成 母、夫婦、子供1人

詳細情報

[テーマ]明るく広々 、 デザイン重視 、 趣味や嗜好を中心に

お客さまのご要望

キッチンが暗い、収納が足りない等あちこちに不便な部分があり、それらをひとつひとつ解消していきたいとの事でした。

リフォーム会社のご提案

今回のリフォームでは、家族が自然と集まるキッチンを中心に、暮らしやすい動線計画を重視しました。キッチンはカップボードをアイランド型とし、カウンターをL型に設置することで、調理や作業をしながら家族との会話を楽しめます。ぐるりと回遊できる動線が日々の家事をスムーズにします。廊下の収納は脱衣室からの洗濯機置き場へ変えることで間口のあるカウンタータイプの洗面化粧台を設置し、実際の広さ以上の開放感を感じられる空間となりました。

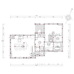
Before

Before

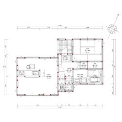
After

After

使いやすさと美しさを両立したキッチン

使いやすさと美しさを両立したキッチン
建物のタイプ 戸建住宅
価格 150万円(単独工事をする場合の概算です)
築年数 16〜20年
工期(全体) 3ヶ月以上
面積  
その他採用機器・設備
施工地 埼玉県 さいたま市見沼区
家族構成 母、夫婦、子供1人

詳細情報:

[テーマ] 収納充実 、 デザイン重視 / メーカー:クリナップ / 商品名:ラクエラ / レイアウト:壁付:I型 / [扉]カラー:黒 / 調理器具:ガス / ビルトイン食器洗い乾燥機:有り

リフォーム会社のご提案

今回のリフォームでは、家族が自然と集まるキッチンを中心に、暮らしやすい動線計画を重視しました。キッチンはカップボードをアイランド型とし、カウンターをL型に設置することで、調理や作業をしながら家族との会話を楽しめます。ぐるりと回遊できる動線が日々の家事をスムーズにします。廊下の収納は脱衣室からの洗濯機置き場へ変えることで間口のあるカウンタータイプの洗面化粧台を設置し、実際の広さ以上の開放感を感じられる空間となりました。

ブラックをアクセントに!上質な水回り空間

ブラックをアクセントに!上質な水回り空間
建物のタイプ 戸建住宅
価格 150万円(単独工事をする場合の概算です)
築年数 16〜20年
工期(全体) 3ヶ月以上
面積  
その他採用機器・設備
施工地 埼玉県 さいたま市見沼区
家族構成 母、夫婦、子供1人

詳細情報:

[テーマ] 明るく広々 、 デザイン重視 / メーカー:TOTO / 種別:システムバス(ユニットバス) / サイズ:1坪(1616、1717) / カラー:白 / カラー:黒

リフォーム会社のご提案

今回のリフォームでは、家族が自然と集まるキッチンを中心に、暮らしやすい動線計画を重視しました。キッチンはカップボードをアイランド型とし、カウンターをL型に設置することで、調理や作業をしながら家族との会話を楽しめます。ぐるりと回遊できる動線が日々の家事をスムーズにします。廊下の収納は脱衣室からの洗濯機置き場へ変えることで間口のあるカウンタータイプの洗面化粧台を設置し、実際の広さ以上の開放感を感じられる空間となりました。

清潔感あふれる、明るいトイレ

清潔感あふれる、明るいトイレ
建物のタイプ 戸建住宅
価格 30万円(単独工事をする場合の概算です)
築年数 16〜20年
工期(全体) 3ヶ月以上
面積  
その他採用機器・設備
施工地 埼玉県 さいたま市見沼区
家族構成 母、夫婦、子供1人

詳細情報:

[テーマ] 明るく広々 、 デザイン重視 / メーカー:TOTO / 種別:洋式:タンクレス / カラー:白 / 温水洗浄便座:有り / 節水(6リットル以下):有り

リフォーム会社のご提案

今回のリフォームでは、家族が自然と集まるキッチンを中心に、暮らしやすい動線計画を重視しました。キッチンはカップボードをアイランド型とし、カウンターをL型に設置することで、調理や作業をしながら家族との会話を楽しめます。ぐるりと回遊できる動線が日々の家事をスムーズにします。廊下の収納は脱衣室からの洗濯機置き場へ変えることで間口のあるカウンタータイプの洗面化粧台を設置し、実際の広さ以上の開放感を感じられる空間となりました。

ゆったりと身支度のできる洗面脱衣室

ゆったりと身支度のできる洗面脱衣室
建物のタイプ 戸建住宅
価格 60万円(単独工事をする場合の概算です)
築年数 16〜20年
工期(全体) 3ヶ月以上
面積  
その他採用機器・設備
施工地 埼玉県 さいたま市見沼区
家族構成 母、夫婦、子供1人

詳細情報:

[テーマ] 収納充実 、 明るく広々 、 デザイン重視 / メーカー:その他 / 商品名:アイカスマートサニタリー / 間口:901mm〜 / カラー:白 / カラー:グレー / 造作:有り

リフォーム会社のご提案

今回のリフォームでは、家族が自然と集まるキッチンを中心に、暮らしやすい動線計画を重視しました。キッチンはカップボードをアイランド型とし、カウンターをL型に設置することで、調理や作業をしながら家族との会話を楽しめます。ぐるりと回遊できる動線が日々の家事をスムーズにします。廊下の収納は脱衣室からの洗濯機置き場へ変えることで間口のあるカウンタータイプの洗面化粧台を設置し、実際の広さ以上の開放感を感じられる空間となりました。

白を基調とした明るい洋室

白を基調とした明るい洋室
建物のタイプ 戸建住宅
価格 30万円(単独工事をする場合の概算です)
築年数 16〜20年
工期(全体) 3ヶ月以上
面積  
その他採用機器・設備
施工地 埼玉県 さいたま市見沼区
家族構成 母、夫婦、子供1人

詳細情報:

[テーマ] 明るく広々 、 デザイン重視 / 用途:書斎 / 素材:その他 / 広さ:〜6畳(〜約10㎡)

リフォーム会社のご提案

今回のリフォームでは、家族が自然と集まるキッチンを中心に、暮らしやすい動線計画を重視しました。キッチンはカップボードをアイランド型とし、カウンターをL型に設置することで、調理や作業をしながら家族との会話を楽しめます。ぐるりと回遊できる動線が日々の家事をスムーズにします。廊下の収納は脱衣室からの洗濯機置き場へ変えることで間口のあるカウンタータイプの洗面化粧台を設置し、実際の広さ以上の開放感を感じられる空間となりました。

アクセントクロスが目を惹くクローゼット

アクセントクロスが目を惹くクローゼット
建物のタイプ 戸建住宅
価格 20万円(単独工事をする場合の概算です)
築年数 16〜20年
工期(全体) 3ヶ月以上
面積  
その他採用機器・設備
施工地 埼玉県 さいたま市見沼区
家族構成 母、夫婦、子供1人

詳細情報:

[テーマ] 収納充実 、 デザイン重視 、 趣味や嗜好を中心に / 設置場所:寝室

リフォーム会社のご提案

今回のリフォームでは、家族が自然と集まるキッチンを中心に、暮らしやすい動線計画を重視しました。キッチンはカップボードをアイランド型とし、カウンターをL型に設置することで、調理や作業をしながら家族との会話を楽しめます。ぐるりと回遊できる動線が日々の家事をスムーズにします。廊下の収納は脱衣室からの洗濯機置き場へ変えることで間口のあるカウンタータイプの洗面化粧台を設置し、実際の広さ以上の開放感を感じられる空間となりました。

リフォーム会社に対する施主の評価・クチコミ

担当者の人柄・説明力(30代/女性)

5

営業の方のフットワークの軽さ、丁寧な心配り、 そして、壁紙や家具の配置等、インテリアコーディネーターのかたのセンスがとても信頼でき、全てにおいて満足のいく、会社のカラーがとても素敵な会社と見受けられました。

この会社に決めた理由

私たちの提案した例えばAプラン通りに他社は計画してくれましたが、こちらの会社の営業さんは、勿論Aプランありきですが、Bプランを提案されました。 A、Bプランの良し悪しを分かりやすく説明され、流石の営業マンだな、と感心しました。 建築士の免許も持たれていたので、細かい部分も把握されてたのかと思います。

このようなリフォームを実現できる
お近くのリフォーム会社を、複数社ご紹介!

よく似た事例

最近見た事例

このようなリフォームを実現できる
お近くのリフォーム会社を、複数社ご紹介!

事例一覧へ戻る
ページの
先頭へ