比べて、選べる。リフォーム会社紹介サイト「ホームプロ」

会員ページでは、お申込みいただいた内容に対応できるリフォーム会社を紹介しています。各社の会社情報、評価・クチコミの閲覧や、メッセージのやりとり(商談)ができます。

閉じる
  1. リフォームTOP
  2. 埼玉県
  3. さいたま市
  4. さいたま市浦和区
  5. 株式会社フレッシュハウス
  6. 団欒に溶け込むロングキッチン
事例一覧へ戻る

団欒に溶け込むロングキッチン

建物のタイプ マンション 価格 1,500万円
築年数 30年以上 工期 3ヶ月以上
竣工年月日 2025年6月3日 構造 RC造
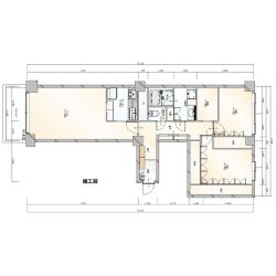
施工地 東京都 世田谷区 リフォーム箇所 キッチントイレ洗面リビングダイニング洋室
家族構成 夫婦、子供

詳細情報

[テーマ]全面改装 、 リノベーション 、 趣味や嗜好を中心に

お客さまのご要望

同じマンション内の実家をフルリノベーションして転居したい。築年数が経っているので見えない部分も見て工事をしてほしい。補助金を使ってインナーサッシを付けたい。とのこと。キッチンはご主人が使われていたアメリカのキッチンスタイルをご希望です。

リフォーム会社のご提案

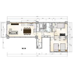
築年数を考慮し、配管、配線を含め、すべてを一新できるスケルトンでのリフォームに。また、キッチンへのご要望に応えるために幅4メートルのL型キッチンをご提案。多くの家電をキッチンの天板に並べて使えるようなスペースを確保し、かつ作業スペースも広く。背面には長いダイニングテーブルを置いて一緒に会話を楽しみながら準備をし、食卓を囲めるようにしました。

Before

Before

After

After

L型4mのロングキッチンは、家具のような木目の面材に。

L型4mのロングキッチンは、家具のような木目の面材に。
建物のタイプ マンション
価格 300万円(単独工事をする場合の概算です)
築年数 30年以上
工期(全体) 3ヶ月以上
面積  
その他採用機器・設備
施工地 東京都 世田谷区
家族構成 夫婦、子供

詳細情報:

[テーマ] 全面改装 / メーカー:Panasonic / 商品名:Lクラス / レイアウト:壁付:L型 / 調理器具:IH / ビルトイン食器洗い乾燥機:有り

リフォーム会社のご提案

築年数を考慮し、配管、配線を含め、すべてを一新できるスケルトンでのリフォームに。また、キッチンへのご要望に応えるために幅4メートルのL型キッチンをご提案。多くの家電をキッチンの天板に並べて使えるようなスペースを確保し、かつ作業スペースも広く。背面には長いダイニングテーブルを置いて一緒に会話を楽しみながら準備をし、食卓を囲めるようにしました。

Before

Before

After

After

揺らぐ光を受け止めるライトグレーの壁が美しいトイレ

揺らぐ光を受け止めるライトグレーの壁が美しいトイレ
建物のタイプ マンション
価格 30万円(単独工事をする場合の概算です)
築年数 30年以上
工期(全体) 3ヶ月以上
面積  
その他採用機器・設備
施工地 東京都 世田谷区
家族構成 夫婦、子供

詳細情報:

[テーマ] / メーカー:TOTO / 商品名:ピュアレストER、アプリコット / 種別:洋式:タンク式 / 温水洗浄便座:有り

リフォーム会社のご提案

築年数を考慮し、配管、配線を含め、すべてを一新できるスケルトンでのリフォームに。また、キッチンへのご要望に応えるために幅4メートルのL型キッチンをご提案。多くの家電をキッチンの天板に並べて使えるようなスペースを確保し、かつ作業スペースも広く。背面には長いダイニングテーブルを置いて一緒に会話を楽しみながら準備をし、食卓を囲めるようにしました。

Before

Before

After

After

洗濯物を干したままでも洗面が使いやすい技ありの洗面室

洗濯物を干したままでも洗面が使いやすい技ありの洗面室
建物のタイプ マンション
価格 60万円(単独工事をする場合の概算です)
築年数 30年以上
工期(全体) 3ヶ月以上
面積  
その他採用機器・設備
施工地 東京都 世田谷区
家族構成 夫婦、子供

詳細情報:

[テーマ] / メーカー:Panasonic / 商品名:シーラインD530タイプツインライン / 間口:指定なし

リフォーム会社のご提案

築年数を考慮し、配管、配線を含め、すべてを一新できるスケルトンでのリフォームに。また、キッチンへのご要望に応えるために幅4メートルのL型キッチンをご提案。多くの家電をキッチンの天板に並べて使えるようなスペースを確保し、かつ作業スペースも広く。背面には長いダイニングテーブルを置いて一緒に会話を楽しみながら準備をし、食卓を囲めるようにしました。

Before

Before

After

After

サイドテーブルにして床を広く見せ、ゆとりあるリビングに。

サイドテーブルにして床を広く見せ、ゆとりあるリビングに。
建物のタイプ マンション
価格 50万円(単独工事をする場合の概算です)
築年数 30年以上
工期(全体) 3ヶ月以上
面積  
その他採用機器・設備
施工地 東京都 世田谷区
家族構成 夫婦、子供

詳細情報:

[テーマ] / 素材:指定なし / 広さ:指定なし

リフォーム会社のご提案

築年数を考慮し、配管、配線を含め、すべてを一新できるスケルトンでのリフォームに。また、キッチンへのご要望に応えるために幅4メートルのL型キッチンをご提案。多くの家電をキッチンの天板に並べて使えるようなスペースを確保し、かつ作業スペースも広く。背面には長いダイニングテーブルを置いて一緒に会話を楽しみながら準備をし、食卓を囲めるようにしました。

Before

Before

After

After

キッチンに沿うように長いダイニングテーブルを配置

キッチンに沿うように長いダイニングテーブルを配置
建物のタイプ マンション
価格 50万円(単独工事をする場合の概算です)
築年数 30年以上
工期(全体) 3ヶ月以上
面積  
その他採用機器・設備
施工地 東京都 世田谷区
家族構成 夫婦、子供

詳細情報:

[テーマ] 全面改装 / 素材:指定なし / 広さ:指定なし

リフォーム会社のご提案

築年数を考慮し、配管、配線を含め、すべてを一新できるスケルトンでのリフォームに。また、キッチンへのご要望に応えるために幅4メートルのL型キッチンをご提案。多くの家電をキッチンの天板に並べて使えるようなスペースを確保し、かつ作業スペースも広く。背面には長いダイニングテーブルを置いて一緒に会話を楽しみながら準備をし、食卓を囲めるようにしました。

欧州のホテルのようなインテリアの寝室

欧州のホテルのようなインテリアの寝室
建物のタイプ マンション
価格 50万円(単独工事をする場合の概算です)
築年数 30年以上
工期(全体) 3ヶ月以上
面積  
その他採用機器・設備
施工地 東京都 世田谷区
家族構成 夫婦、子供

詳細情報:

[テーマ] / 用途:指定なし / 素材:指定なし / 広さ:指定なし

リフォーム会社のご提案

築年数を考慮し、配管、配線を含め、すべてを一新できるスケルトンでのリフォームに。また、キッチンへのご要望に応えるために幅4メートルのL型キッチンをご提案。多くの家電をキッチンの天板に並べて使えるようなスペースを確保し、かつ作業スペースも広く。背面には長いダイニングテーブルを置いて一緒に会話を楽しみながら準備をし、食卓を囲めるようにしました。

Before

Before

After

After

このようなリフォームを実現できる
お近くのリフォーム会社を、複数社ご紹介!

よく似た事例

最近見た事例

このようなリフォームを実現できる
お近くのリフォーム会社を、複数社ご紹介!

事例一覧へ戻る
ページの
先頭へ