比べて、選べる。リフォーム会社紹介サイト「ホームプロ」

会員ページでは、お申込みいただいた内容に対応できるリフォーム会社を紹介しています。各社の会社情報、評価・クチコミの閲覧や、メッセージのやりとり(商談)ができます。

閉じる
  1. リフォームTOP
  2. 愛知県
  3. 名古屋市
  4. 名古屋市守山区
  5. 株式会社武市ウインド名古屋(雅の家)
  6. 造作家具とデザインが調和する、心地よい住まい
事例一覧へ戻る

造作家具とデザインが調和する、心地よい住まい

建物のタイプ マンション 価格 1,100万円
築年数 30年以上 工期 2ヶ月
竣工年月日 2024年11月22日 構造 RC造
施工地 愛知県 みよし市 リフォーム箇所 キッチン・台所浴室・ユニットバス洗面所・脱衣所リビング洋室
家族構成 夫婦、子供

詳細情報

[テーマ]全面改装 、 リノベーション 、 デザイン重視

お客さまのご要望

閉鎖的で家族とのコミュニケーションがとりづらい間取りを一新したい

リフォーム会社のご提案

生活するうえで支障がない壁を取り払い、開放的な空間にしあげました

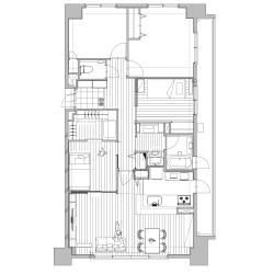
Before

Before

壁で隔てられたキッチン空間の解放と、和室を洋室にして使い勝手を良く、収納スペースの確保をご希望でした

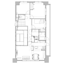
After

After

キッチンの壁を取り払い空間全体がつながる開放的なキッチンに。和室はベッドが置けるようにフローリングにし、WICを設けることでマンションでお悩みの収納不足を解消しました

キッチンと造作家具

キッチンと造作家具
建物のタイプ マンション
価格 210万円(単独工事をする場合の概算です)
築年数 30年以上
工期(全体) 2ヶ月
面積  
その他採用機器・設備 LIXIL ノクト
施工地 愛知県 みよし市
家族構成 夫婦、子供

詳細情報:

[テーマ] リノベーション 、 明るく広々 、 デザイン重視 / メーカー:LIXIL(旧サンウエーブ他) / 商品名:ノクト / レイアウト:対面:ペニンシュラ型 / [扉]カラー:白 / [扉]カラー:グレー / 調理器具:ガス / ビルトイン食器洗い乾燥機:有り / その他採用機器・設備:LIXIL ノクト

リフォーム会社のご提案

生活するうえで支障がない壁を取り払い、開放的な空間にしあげました

木目とベージュであたたかみのある浴室に

木目とベージュであたたかみのある浴室に
建物のタイプ マンション
価格 142万円(単独工事をする場合の概算です)
築年数 30年以上
工期(全体) 2ヶ月
面積  
その他採用機器・設備 TOTO マンションリモデルバスルーム
施工地 愛知県 みよし市
家族構成 夫婦、子供

詳細情報:

[テーマ] リノベーション 、 明るく広々 / メーカー:TOTO / 商品名:マンションリモデルバスルーム / 種別:システムバス(ユニットバス) / サイズ:1坪(1616、1717) / カラー:白 / カラー:ベージュ / 保温浴槽:有り / 浴室暖房乾燥機:有り / その他採用機器・設備:TOTO マンションリモデルバスルーム

リフォーム会社のご提案

生活するうえで支障がない壁を取り払い、開放的な空間にしあげました

Before

Before

After

After

洗面室で叶える充実収納

洗面室で叶える充実収納
建物のタイプ マンション
価格 93万円(単独工事をする場合の概算です)
築年数 30年以上
工期(全体) 2ヶ月
面積  
その他採用機器・設備 TOTO オクターブ
施工地 愛知県 みよし市
家族構成 夫婦、子供

詳細情報:

[テーマ] リノベーション 、 収納充実 、 明るく広々 / メーカー:TOTO / 商品名:オクターブ / 間口:901mm〜 / カラー:白 / その他採用機器・設備:TOTO オクターブ

リフォーム会社のご提案

生活するうえで支障がない壁を取り払い、開放的な空間にしあげました

Before

Before

After

After

リビングに溶け込む造作テレビボード

リビングに溶け込む造作テレビボード
建物のタイプ マンション
価格 99万円(単独工事をする場合の概算です)
築年数 30年以上
工期(全体) 2ヶ月
面積  
その他採用機器・設備
施工地 愛知県 みよし市
家族構成 夫婦、子供

詳細情報:

[テーマ] 収納充実 、 明るく広々 、 デザイン重視 / 素材:指定なし / 広さ:指定なし

リフォーム会社のご提案

生活するうえで支障がない壁を取り払い、開放的な空間にしあげました

洋室とWIC

洋室とWIC
建物のタイプ マンション
価格 100万円(単独工事をする場合の概算です)
築年数 30年以上
工期(全体) 2ヶ月
面積  
その他採用機器・設備
施工地 愛知県 みよし市
家族構成 夫婦、子供

詳細情報:

[テーマ] リノベーション 、 収納充実 、 明るく広々 / 用途:指定なし / 間取り変更:有り / 素材:指定なし / 広さ:〜6畳(〜約10㎡) / 和洋変更:和室→洋室

リフォーム会社のご提案

生活するうえで支障がない壁を取り払い、開放的な空間にしあげました

リフォーム会社に対する施主の評価・クチコミ

担当者の人柄・説明力(60代/男性)

5

大規模リフォームで何をすればよいか分からなかったのですが、きめ細かく対応していただけました。また、期待以上の仕上りに大変満足しています。

この会社に決めた理由

複数社の相見積もりで、提案内容が一番優れていたため

このようなリフォームを実現できる
お近くのリフォーム会社を、複数社ご紹介!

よく似た事例

最近見た事例

このようなリフォームを実現できる
お近くのリフォーム会社を、複数社ご紹介!

事例一覧へ戻る
ページの
先頭へ