比べて、選べる。リフォーム会社紹介サイト「ホームプロ」

会員ページでは、お申込みいただいた内容に対応できるリフォーム会社を紹介しています。各社の会社情報、評価・クチコミの閲覧や、メッセージのやりとり(商談)ができます。

閉じる
  1. リフォームTOP
  2. 埼玉県
  3. さいたま市
  4. さいたま市浦和区
  5. 株式会社フレッシュハウス
  6. 造作で創る天空の城
事例一覧へ戻る

造作で創る天空の城

建物のタイプ マンション 価格 2,650万円
築年数 16〜20年 工期 3ヶ月以上
竣工年月日 2024年4月10日 構造 RC造
施工地 東京都 新宿区 リフォーム箇所 キッチン・台所浴室・ユニットバストイレ洗面所・脱衣所リビングダイニング
家族構成 夫婦

詳細情報

[テーマ]全面改装 、 中古を買う 、 デザイン重視

お客さまのご要望

立地の良い物件が出たのでマンションを住み替えたい。転居前に中をきれいにして使い易く変えてほしい。何社か見積りを取ったが、キッチンの使い勝手が悪く、気に入らない。使いたい食洗機やレンジなどの設備を使いやすいようにきれいに納めたい。とにかく洗練されたデザインにこだわりたい。

リフォーム会社のご提案

空気・温熱環境に配慮してプランニングしました。窓には内窓を取り付け、断熱性を向上。壁・天井は天然素材の漆喰にしています。オーダーキッチンの天板は汚れ、傷、そして熱に対する高い耐性を持つデクトンを使い、使い勝手に配慮しました。TVの後ろの壁は同じ色で質感の異なるタイルでポイントを演出。窓のカウンターや窓下にも大理石調のタイルを使ったりと、高級感の有るホワイトインテリアにまとめています。床には床暖房を設置。手入れのしやすいライトオークのフローリングを使い、木目のナチュラルな印象を加えました。

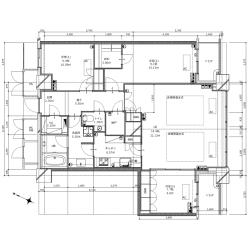
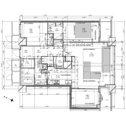
Before

Before

After

After

オーダーで同じ仕様の収納も造作したキッチン

オーダーで同じ仕様の収納も造作したキッチン
建物のタイプ マンション
価格 400万円(単独工事をする場合の概算です)
築年数 16〜20年
工期(全体) 3ヶ月以上
面積  
その他採用機器・設備 天板:デクストン
施工地 東京都 新宿区
家族構成 夫婦

詳細情報:

[テーマ] 全面改装 、 中古を買う 、 デザイン重視 / メーカー:指定なし / レイアウト:壁付:I型 / 調理器具:IH / その他採用機器・設備:天板:デクストン

リフォーム会社のご提案

空気・温熱環境に配慮してプランニングしました。窓には内窓を取り付け、断熱性を向上。壁・天井は天然素材の漆喰にしています。オーダーキッチンの天板は汚れ、傷、そして熱に対する高い耐性を持つデクトンを使い、使い勝手に配慮しました。TVの後ろの壁は同じ色で質感の異なるタイルでポイントを演出。窓のカウンターや窓下にも大理石調のタイルを使ったりと、高級感の有るホワイトインテリアにまとめています。床には床暖房を設置。手入れのしやすいライトオークのフローリングを使い、木目のナチュラルな印象を加えました。

Before

Before

After

After

クールでスタイリッシュな浴室

クールでスタイリッシュな浴室
建物のタイプ マンション
価格 200万円(単独工事をする場合の概算です)
築年数 16〜20年
工期(全体) 3ヶ月以上
面積  
その他採用機器・設備
施工地 東京都 新宿区
家族構成 夫婦

詳細情報:

[テーマ] / メーカー:指定なし / 種別:システムバス(ユニットバス) / サイズ:1.25坪(1618〜1621)

リフォーム会社のご提案

空気・温熱環境に配慮してプランニングしました。窓には内窓を取り付け、断熱性を向上。壁・天井は天然素材の漆喰にしています。オーダーキッチンの天板は汚れ、傷、そして熱に対する高い耐性を持つデクトンを使い、使い勝手に配慮しました。TVの後ろの壁は同じ色で質感の異なるタイルでポイントを演出。窓のカウンターや窓下にも大理石調のタイルを使ったりと、高級感の有るホワイトインテリアにまとめています。床には床暖房を設置。手入れのしやすいライトオークのフローリングを使い、木目のナチュラルな印象を加えました。

無駄を排除したシンプルな手洗いと収納を造作したトイレ

無駄を排除したシンプルな手洗いと収納を造作したトイレ
建物のタイプ マンション
価格 80万円(単独工事をする場合の概算です)
築年数 16〜20年
工期(全体) 3ヶ月以上
面積  
その他採用機器・設備
施工地 東京都 新宿区
家族構成 夫婦

詳細情報:

[テーマ] 全面改装 、 中古を買う 、 デザイン重視 / メーカー:指定なし / 種別:指定なし / 温水洗浄便座:有り / 節水(6リットル以下):有り / 別置き手洗い器:有り

リフォーム会社のご提案

空気・温熱環境に配慮してプランニングしました。窓には内窓を取り付け、断熱性を向上。壁・天井は天然素材の漆喰にしています。オーダーキッチンの天板は汚れ、傷、そして熱に対する高い耐性を持つデクトンを使い、使い勝手に配慮しました。TVの後ろの壁は同じ色で質感の異なるタイルでポイントを演出。窓のカウンターや窓下にも大理石調のタイルを使ったりと、高級感の有るホワイトインテリアにまとめています。床には床暖房を設置。手入れのしやすいライトオークのフローリングを使い、木目のナチュラルな印象を加えました。

Before

Before

After

After

洗面ボウル一体型のカウンターに6つの引き出しで使いやすく

洗面ボウル一体型のカウンターに6つの引き出しで使いやすく
建物のタイプ マンション
価格 80万円(単独工事をする場合の概算です)
築年数 16〜20年
工期(全体) 3ヶ月以上
面積 5.00m²
その他採用機器・設備
施工地 東京都 新宿区
家族構成 夫婦

詳細情報:

[テーマ] 全面改装 、 中古を買う 、 デザイン重視 / メーカー:指定なし / 間口:指定なし

リフォーム会社のご提案

空気・温熱環境に配慮してプランニングしました。窓には内窓を取り付け、断熱性を向上。壁・天井は天然素材の漆喰にしています。オーダーキッチンの天板は汚れ、傷、そして熱に対する高い耐性を持つデクトンを使い、使い勝手に配慮しました。TVの後ろの壁は同じ色で質感の異なるタイルでポイントを演出。窓のカウンターや窓下にも大理石調のタイルを使ったりと、高級感の有るホワイトインテリアにまとめています。床には床暖房を設置。手入れのしやすいライトオークのフローリングを使い、木目のナチュラルな印象を加えました。

1室としても区切れるリビングスペース

1室としても区切れるリビングスペース
建物のタイプ マンション
価格 100万円(単独工事をする場合の概算です)
築年数 16〜20年
工期(全体) 3ヶ月以上
面積 12.00m²
その他採用機器・設備
施工地 東京都 新宿区
家族構成 夫婦

詳細情報:

[テーマ] 全面改装 、 中古を買う 、 デザイン重視 / 素材:指定なし / 広さ:〜8畳(〜約13㎡) / 和洋変更:指定なし

リフォーム会社のご提案

空気・温熱環境に配慮してプランニングしました。窓には内窓を取り付け、断熱性を向上。壁・天井は天然素材の漆喰にしています。オーダーキッチンの天板は汚れ、傷、そして熱に対する高い耐性を持つデクトンを使い、使い勝手に配慮しました。TVの後ろの壁は同じ色で質感の異なるタイルでポイントを演出。窓のカウンターや窓下にも大理石調のタイルを使ったりと、高級感の有るホワイトインテリアにまとめています。床には床暖房を設置。手入れのしやすいライトオークのフローリングを使い、木目のナチュラルな印象を加えました。

Before

Before

After

After

造作で創る天空の城

造作で創る天空の城
建物のタイプ マンション
価格 200万円(単独工事をする場合の概算です)
築年数 16〜20年
工期(全体) 3ヶ月以上
面積 32.00m²
その他採用機器・設備
施工地 東京都 新宿区
家族構成 夫婦

詳細情報:

[テーマ] / 素材:指定なし / 広さ:指定なし

リフォーム会社のご提案

空気・温熱環境に配慮してプランニングしました。窓には内窓を取り付け、断熱性を向上。壁・天井は天然素材の漆喰にしています。オーダーキッチンの天板は汚れ、傷、そして熱に対する高い耐性を持つデクトンを使い、使い勝手に配慮しました。TVの後ろの壁は同じ色で質感の異なるタイルでポイントを演出。窓のカウンターや窓下にも大理石調のタイルを使ったりと、高級感の有るホワイトインテリアにまとめています。床には床暖房を設置。手入れのしやすいライトオークのフローリングを使い、木目のナチュラルな印象を加えました。

Before

Before

After

After

このようなリフォームを実現できる
お近くのリフォーム会社を、複数社ご紹介!

よく似た事例

最近見た事例

このようなリフォームを実現できる
お近くのリフォーム会社を、複数社ご紹介!

事例一覧へ戻る
ページの
先頭へ