比べて、選べる。リフォーム会社紹介サイト「ホームプロ」

会員ページでは、お申込みいただいた内容に対応できるリフォーム会社を紹介しています。各社の会社情報、評価・クチコミの閲覧や、メッセージのやりとり(商談)ができます。

閉じる
  1. リフォームTOP
  2. 神奈川県
  3. 横浜市
  4. 横浜市青葉区
  5. 株式会社LIXILトータルサービス
  6. オープンキッチンで開放的なLDKを実現!
事例一覧へ戻る

オープンキッチンで開放的なLDKを実現!

建物のタイプ マンション 価格 980万円
築年数 21〜25年 工期 2ヶ月
竣工年月日 2018年4月21日 構造 RC造
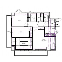
施工地 東京都 台東区 リフォーム箇所 キッチン浴室・バストイレ洗面リビングダイニング洋室洋室洋室玄関
家族構成 夫婦、子供2人

詳細情報

[テーマ]間取り変更・スケルトン 、 明るく広々 、 デザイン重視

お客さまのご要望

今まで東京で単身赴任だったご主人ですが、ご家族が東京へ上京されたため、家族4人で生活できることになりました。これを機に築20年のマンションを購入しましたが、せっかくだから家族全員が快適に暮らせるお家にしたいとリフォームをご検討されました。 ・とにかくLDKを開放的にしたい。 ・キッチンにいても家族で会話ができるように。 ・浴室を出来れば広くしたい。 ・女性が多いので洗面所が混みがち。 ・大人っぽいスタイリッシュな空間に。 ・個室を設けたいが、子供が独立した時の事も視野に入れたい。

リフォーム会社のご提案

(旧株式会社LIXILリニューアルでの事例です。)お客さまは、LDKが狭くなってしまうことを不安に思われていました。そこで、具体的な家具の配置や使い勝手をイメージパースに反映させ、開放感のあるLDKをご提案しました。お子様が独立した後を見据えた、流動的な空間作りを心がけました。また限られた予算・空間の中で、ポイントとなるところには予算をかけつつ、それ以外のところは、最低限にするなど、メリハリをつけて高級感あふれる内装を目指しました。

Before

Before

キッチンが閉鎖的な印象でした。 築20年経っており、全体の印象もどこか古く、機器類も劣化が見られました。ベランダが2方向にあり、どのお部屋も明るく風が通る気持ち良い空間でした。

After

After

閉鎖的だったキッチンをオープンキッチンにすることで、明るく解放感のあるLDKに。LDKに面した和室のように見える部分は、実は置き畳でシーンによって、洋室としても使えます。お子様が独立した後は、LDKの一部に出来るよう将来を見据えた設計になっています。ウォークインクローゼットを設けた事で収納もたっぷり。ユニットバスは一回り大きなものを設置して、ひろびろとしたバスルームを実現しました。

家族との会話が弾むオープンキッチン!

家族との会話が弾むオープンキッチン!
建物のタイプ マンション
価格 180万円(単独工事をする場合の概算です)
築年数 21〜25年
工期(全体) 2ヶ月
面積 3.00m²
その他採用機器・設備 背面収納:シエラ(LIXIL)
施工地 東京都 台東区
家族構成 夫婦、子供2人

詳細情報:

[テーマ] 収納充実 、 明るく広々 、 デザイン重視 / メーカー:LIXIL(旧サンウエーブ他) / 商品名:シエラ / レイアウト:対面:ペニンシュラ型 / [扉]カラー:グレー / 調理器具:ガス / ビルトイン食器洗い乾燥機:有り / その他採用機器・設備:背面収納:シエラ(LIXIL)

お客さまのご要望

今まで東京で単身赴任だったご主人ですが、ご家族が東京へ上京されたため、家族4人で生活できることになりました。これを機に築20年のマンションを購入しましたが、せっかくだから家族全員が快適に暮らせるお家にしたいとリフォームをご検討されました。 ・とにかくLDKを開放的にしたい。 ・キッチンにいても家族で会話ができるように。 ・浴室を出来れば広くしたい。 ・女性が多いので洗面所が混みがち。 ・大人っぽいスタイリッシュな空間に。 ・個室を設けたいが、子供が独立した時の事も視野に入れたい。

リフォーム会社のご提案

(旧株式会社LIXILリニューアルでの事例です。)お客さまは、LDKが狭くなってしまうことを不安に思われていました。そこで、具体的な家具の配置や使い勝手をイメージパースに反映させ、開放感のあるLDKをご提案しました。お子様が独立した後を見据えた、流動的な空間作りを心がけました。また限られた予算・空間の中で、ポイントとなるところには予算をかけつつ、それ以外のところは、最低限にするなど、メリハリをつけて高級感あふれる内装を目指しました。

上質なくつろぎ空間を演出するプレミアムなバスルーム

上質なくつろぎ空間を演出するプレミアムなバスルーム
建物のタイプ マンション
価格 170万円(単独工事をする場合の概算です)
築年数 21〜25年
工期(全体) 2ヶ月
面積 2.30m²
その他採用機器・設備 ソレオ(LIXIL)
施工地 東京都 台東区
家族構成 夫婦、子供2人

詳細情報:

[テーマ] バリアフリー 、 省エネ 、 明るく広々 / メーカー:LIXIL(旧INAX他) / 商品名:ソレオ / 種別:システムバス(ユニットバス) / サイズ:〜0.75坪(1216〜1317) / カラー:黒 / カラー:オレンジ / 浴室暖房乾燥機:有り / その他採用機器・設備:ソレオ(LIXIL)

お客さまのご要望

今まで東京で単身赴任だったご主人ですが、ご家族が東京へ上京されたため、家族4人で生活できることになりました。これを機に築20年のマンションを購入しましたが、せっかくだから家族全員が快適に暮らせるお家にしたいとリフォームをご検討されました。 ・とにかくLDKを開放的にしたい。 ・キッチンにいても家族で会話ができるように。 ・浴室を出来れば広くしたい。 ・女性が多いので洗面所が混みがち。 ・大人っぽいスタイリッシュな空間に。 ・個室を設けたいが、子供が独立した時の事も視野に入れたい。

リフォーム会社のご提案

(旧株式会社LIXILリニューアルでの事例です。)お客さまは、LDKが狭くなってしまうことを不安に思われていました。そこで、具体的な家具の配置や使い勝手をイメージパースに反映させ、開放感のあるLDKをご提案しました。お子様が独立した後を見据えた、流動的な空間作りを心がけました。また限られた予算・空間の中で、ポイントとなるところには予算をかけつつ、それ以外のところは、最低限にするなど、メリハリをつけて高級感あふれる内装を目指しました。

デザインと機能性を重視! 広々トイレ空間

デザインと機能性を重視! 広々トイレ空間
建物のタイプ マンション
価格 40万円(単独工事をする場合の概算です)
築年数 21〜25年
工期(全体) 2ヶ月
面積 1.50m²
その他採用機器・設備 便器:プレアス(LIXIL)/手洗器:コフレルワイド(LIXIL)/壁面収納:ヴィータス(LIXIL)
施工地 東京都 台東区
家族構成 夫婦、子供2人

詳細情報:

[テーマ] 省エネ 、 収納充実 、 デザイン重視 / メーカー:LIXIL(旧INAX他) / 商品名:プレアス / 種別:洋式:タンク式 / カラー:白 / 温水洗浄便座:有り / 節水(6リットル以下):有り / 別置き手洗い器:有り / その他採用機器・設備:便器:プレアス(LIXIL)/手洗器:コフレルワイド(LIXIL)/壁面収納:ヴィータス(LIXIL)

お客さまのご要望

今まで東京で単身赴任だったご主人ですが、ご家族が東京へ上京されたため、家族4人で生活できることになりました。これを機に築20年のマンションを購入しましたが、せっかくだから家族全員が快適に暮らせるお家にしたいとリフォームをご検討されました。 ・とにかくLDKを開放的にしたい。 ・キッチンにいても家族で会話ができるように。 ・浴室を出来れば広くしたい。 ・女性が多いので洗面所が混みがち。 ・大人っぽいスタイリッシュな空間に。 ・個室を設けたいが、子供が独立した時の事も視野に入れたい。

リフォーム会社のご提案

(旧株式会社LIXILリニューアルでの事例です。)お客さまは、LDKが狭くなってしまうことを不安に思われていました。そこで、具体的な家具の配置や使い勝手をイメージパースに反映させ、開放感のあるLDKをご提案しました。お子様が独立した後を見据えた、流動的な空間作りを心がけました。また限られた予算・空間の中で、ポイントとなるところには予算をかけつつ、それ以外のところは、最低限にするなど、メリハリをつけて高級感あふれる内装を目指しました。

みんなが快適なサニタリー空間に!

みんなが快適なサニタリー空間に!
建物のタイプ マンション
価格 35万円(単独工事をする場合の概算です)
築年数 21〜25年
工期(全体) 2ヶ月
面積 4.00m²
その他採用機器・設備 L.C.(LIXIL)
施工地 東京都 台東区
家族構成 夫婦、子供2人

詳細情報:

[テーマ] 収納充実 、 明るく広々 、 デザイン重視 / メーカー:LIXIL(旧INAX他) / 商品名:L.C. / 間口:901mm〜 / カラー:茶 / その他採用機器・設備:L.C.(LIXIL)

お客さまのご要望

今まで東京で単身赴任だったご主人ですが、ご家族が東京へ上京されたため、家族4人で生活できることになりました。これを機に築20年のマンションを購入しましたが、せっかくだから家族全員が快適に暮らせるお家にしたいとリフォームをご検討されました。 ・とにかくLDKを開放的にしたい。 ・キッチンにいても家族で会話ができるように。 ・浴室を出来れば広くしたい。 ・女性が多いので洗面所が混みがち。 ・大人っぽいスタイリッシュな空間に。 ・個室を設けたいが、子供が独立した時の事も視野に入れたい。

リフォーム会社のご提案

(旧株式会社LIXILリニューアルでの事例です。)お客さまは、LDKが狭くなってしまうことを不安に思われていました。そこで、具体的な家具の配置や使い勝手をイメージパースに反映させ、開放感のあるLDKをご提案しました。お子様が独立した後を見据えた、流動的な空間作りを心がけました。また限られた予算・空間の中で、ポイントとなるところには予算をかけつつ、それ以外のところは、最低限にするなど、メリハリをつけて高級感あふれる内装を目指しました。

家族が集う光降りそそぐリビング

家族が集う光降りそそぐリビング
建物のタイプ マンション
価格 250万円(単独工事をする場合の概算です)
築年数 21〜25年
工期(全体) 2ヶ月
面積 25.00m²
その他採用機器・設備 床材:コンビットグラートプラス152(WOODONE)/床暖房
施工地 東京都 台東区
家族構成 夫婦、子供2人

詳細情報:

[テーマ] 間取り変更・スケルトン 、 明るく広々 、 デザイン重視 / 商品名:コンビットグラートプラス152 / 素材:指定なし / 広さ:指定なし / 和洋変更:指定なし / その他採用機器・設備:床材:コンビットグラートプラス152(WOODONE)/床暖房

お客さまのご要望

今まで東京で単身赴任だったご主人ですが、ご家族が東京へ上京されたため、家族4人で生活できることになりました。これを機に築20年のマンションを購入しましたが、せっかくだから家族全員が快適に暮らせるお家にしたいとリフォームをご検討されました。 ・とにかくLDKを開放的にしたい。 ・キッチンにいても家族で会話ができるように。 ・浴室を出来れば広くしたい。 ・女性が多いので洗面所が混みがち。 ・大人っぽいスタイリッシュな空間に。 ・個室を設けたいが、子供が独立した時の事も視野に入れたい。

リフォーム会社のご提案

(旧株式会社LIXILリニューアルでの事例です。)お客さまは、LDKが狭くなってしまうことを不安に思われていました。そこで、具体的な家具の配置や使い勝手をイメージパースに反映させ、開放感のあるLDKをご提案しました。お子様が独立した後を見据えた、流動的な空間作りを心がけました。また限られた予算・空間の中で、ポイントとなるところには予算をかけつつ、それ以外のところは、最低限にするなど、メリハリをつけて高級感あふれる内装を目指しました。

コンパクトでも広く感じるダイニング

コンパクトでも広く感じるダイニング
建物のタイプ マンション
価格 30万円(単独工事をする場合の概算です)
築年数 21〜25年
工期(全体) 2ヶ月
面積  
その他採用機器・設備 床材:コンビットグラートプラス152(WOODONE)/壁アクセント:エコカラット(LIXIL)
施工地 東京都 台東区
家族構成 夫婦、子供2人

詳細情報:

[テーマ] 間取り変更・スケルトン 、 明るく広々 、 デザイン重視 / 商品名:コンビットグラートプラス152 / 素材:指定なし / 広さ:指定なし / 和洋変更:指定なし / その他採用機器・設備:床材:コンビットグラートプラス152(WOODONE)/壁アクセント:エコカラット(LIXIL)

お客さまのご要望

今まで東京で単身赴任だったご主人ですが、ご家族が東京へ上京されたため、家族4人で生活できることになりました。これを機に築20年のマンションを購入しましたが、せっかくだから家族全員が快適に暮らせるお家にしたいとリフォームをご検討されました。 ・とにかくLDKを開放的にしたい。 ・キッチンにいても家族で会話ができるように。 ・浴室を出来れば広くしたい。 ・女性が多いので洗面所が混みがち。 ・大人っぽいスタイリッシュな空間に。 ・個室を設けたいが、子供が独立した時の事も視野に入れたい。

リフォーム会社のご提案

(旧株式会社LIXILリニューアルでの事例です。)お客さまは、LDKが狭くなってしまうことを不安に思われていました。そこで、具体的な家具の配置や使い勝手をイメージパースに反映させ、開放感のあるLDKをご提案しました。お子様が独立した後を見据えた、流動的な空間作りを心がけました。また限られた予算・空間の中で、ポイントとなるところには予算をかけつつ、それ以外のところは、最低限にするなど、メリハリをつけて高級感あふれる内装を目指しました。

1人の時間も大切にしたい!子供部屋

1人の時間も大切にしたい!子供部屋
建物のタイプ マンション
価格 70万円(単独工事をする場合の概算です)
築年数 21〜25年
工期(全体) 2ヶ月
面積 11.00m²
その他採用機器・設備 床材:コンビットグラートプラス152(WOODONE)
施工地 東京都 台東区
家族構成 夫婦、子供2人

詳細情報:

[テーマ] 間取り変更・スケルトン 、 明るく広々 、 デザイン重視 / 用途:子供部屋 / 商品名:コンビットグラートプラス152 / 素材:指定なし / 広さ:7畳〜10畳(〜約16㎡) / 和洋変更:指定なし / その他採用機器・設備:床材:コンビットグラートプラス152(WOODONE)

お客さまのご要望

今まで東京で単身赴任だったご主人ですが、ご家族が東京へ上京されたため、家族4人で生活できることになりました。これを機に築20年のマンションを購入しましたが、せっかくだから家族全員が快適に暮らせるお家にしたいとリフォームをご検討されました。 ・とにかくLDKを開放的にしたい。 ・キッチンにいても家族で会話ができるように。 ・浴室を出来れば広くしたい。 ・女性が多いので洗面所が混みがち。 ・大人っぽいスタイリッシュな空間に。 ・個室を設けたいが、子供が独立した時の事も視野に入れたい。

リフォーム会社のご提案

(旧株式会社LIXILリニューアルでの事例です。)お客さまは、LDKが狭くなってしまうことを不安に思われていました。そこで、具体的な家具の配置や使い勝手をイメージパースに反映させ、開放感のあるLDKをご提案しました。お子様が独立した後を見据えた、流動的な空間作りを心がけました。また限られた予算・空間の中で、ポイントとなるところには予算をかけつつ、それ以外のところは、最低限にするなど、メリハリをつけて高級感あふれる内装を目指しました。

将来を見据えた洋室 和室としてもお使い頂けます!

将来を見据えた洋室 和室としてもお使い頂けます!
建物のタイプ マンション
価格 80万円(単独工事をする場合の概算です)
築年数 21〜25年
工期(全体) 2ヶ月
面積  
その他採用機器・設備 床材:コンビットグラートプラス152(WOODONE)
施工地 東京都 台東区
家族構成 夫婦、子供2人

詳細情報:

[テーマ] 間取り変更・スケルトン 、 明るく広々 、 子供が独立後の住まい / 用途:寝室 / 商品名:コンビットグラートプラス152 / 間取り変更:有り / 素材:指定なし / 広さ:〜6畳(〜約10㎡) / 和洋変更:指定なし / その他採用機器・設備:床材:コンビットグラートプラス152(WOODONE)

お客さまのご要望

今まで東京で単身赴任だったご主人ですが、ご家族が東京へ上京されたため、家族4人で生活できることになりました。これを機に築20年のマンションを購入しましたが、せっかくだから家族全員が快適に暮らせるお家にしたいとリフォームをご検討されました。 ・とにかくLDKを開放的にしたい。 ・キッチンにいても家族で会話ができるように。 ・浴室を出来れば広くしたい。 ・女性が多いので洗面所が混みがち。 ・大人っぽいスタイリッシュな空間に。 ・個室を設けたいが、子供が独立した時の事も視野に入れたい。

リフォーム会社のご提案

(旧株式会社LIXILリニューアルでの事例です。)お客さまは、LDKが狭くなってしまうことを不安に思われていました。そこで、具体的な家具の配置や使い勝手をイメージパースに反映させ、開放感のあるLDKをご提案しました。お子様が独立した後を見据えた、流動的な空間作りを心がけました。また限られた予算・空間の中で、ポイントとなるところには予算をかけつつ、それ以外のところは、最低限にするなど、メリハリをつけて高級感あふれる内装を目指しました。

お子様の為の洋室

お子様の為の洋室
建物のタイプ マンション
価格 50万円(単独工事をする場合の概算です)
築年数 21〜25年
工期(全体) 2ヶ月
面積  
その他採用機器・設備 床材:コンビットグラートプラス152(WOODONE)
施工地 東京都 台東区
家族構成 夫婦、子供2人

詳細情報:

[テーマ] 収納充実 、 明るく広々 、 デザイン重視 / 用途:子供部屋 / 商品名:コンビットグラートプラス152 / 素材:指定なし / 広さ:〜6畳(〜約10㎡) / 和洋変更:指定なし / その他採用機器・設備:床材:コンビットグラートプラス152(WOODONE)

お客さまのご要望

今まで東京で単身赴任だったご主人ですが、ご家族が東京へ上京されたため、家族4人で生活できることになりました。これを機に築20年のマンションを購入しましたが、せっかくだから家族全員が快適に暮らせるお家にしたいとリフォームをご検討されました。 ・とにかくLDKを開放的にしたい。 ・キッチンにいても家族で会話ができるように。 ・浴室を出来れば広くしたい。 ・女性が多いので洗面所が混みがち。 ・大人っぽいスタイリッシュな空間に。 ・個室を設けたいが、子供が独立した時の事も視野に入れたい。

リフォーム会社のご提案

(旧株式会社LIXILリニューアルでの事例です。)お客さまは、LDKが狭くなってしまうことを不安に思われていました。そこで、具体的な家具の配置や使い勝手をイメージパースに反映させ、開放感のあるLDKをご提案しました。お子様が独立した後を見据えた、流動的な空間作りを心がけました。また限られた予算・空間の中で、ポイントとなるところには予算をかけつつ、それ以外のところは、最低限にするなど、メリハリをつけて高級感あふれる内装を目指しました。

収納力たっぷり玄関収納

収納力たっぷり玄関収納
建物のタイプ マンション
価格 40万円(単独工事をする場合の概算です)
築年数 21〜25年
工期(全体) 2ヶ月
面積  
その他採用機器・設備 床材:コンビットグラートプラス152(WOODONE) 土間床材:床用タイル(LIXIL)
施工地 東京都 台東区
家族構成 夫婦、子供2人

詳細情報:

[テーマ] 間取り変更・スケルトン 、 収納充実 、 デザイン重視 / メーカー:その他 / 商品名:ソフトアート / 種別:指定なし / カラー:白 / カラー:黄 / 材質:その他 / その他採用機器・設備:床材:コンビットグラートプラス152(WOODONE) 土間床材:床用タイル(LIXIL)

お客さまのご要望

今まで東京で単身赴任だったご主人ですが、ご家族が東京へ上京されたため、家族4人で生活できることになりました。これを機に築20年のマンションを購入しましたが、せっかくだから家族全員が快適に暮らせるお家にしたいとリフォームをご検討されました。 ・とにかくLDKを開放的にしたい。 ・キッチンにいても家族で会話ができるように。 ・浴室を出来れば広くしたい。 ・女性が多いので洗面所が混みがち。 ・大人っぽいスタイリッシュな空間に。 ・個室を設けたいが、子供が独立した時の事も視野に入れたい。

リフォーム会社のご提案

(旧株式会社LIXILリニューアルでの事例です。)お客さまは、LDKが狭くなってしまうことを不安に思われていました。そこで、具体的な家具の配置や使い勝手をイメージパースに反映させ、開放感のあるLDKをご提案しました。お子様が独立した後を見据えた、流動的な空間作りを心がけました。また限られた予算・空間の中で、ポイントとなるところには予算をかけつつ、それ以外のところは、最低限にするなど、メリハリをつけて高級感あふれる内装を目指しました。

このようなリフォームを実現できる
お近くのリフォーム会社を、複数社ご紹介!

よく似た事例

最近見た事例

このようなリフォームを実現できる
お近くのリフォーム会社を、複数社ご紹介!

事例一覧へ戻る
ページの
先頭へ