比べて、選べる。リフォーム会社紹介サイト「ホームプロ」

会員ページでは、お申込みいただいた内容に対応できるリフォーム会社を紹介しています。各社の会社情報、評価・クチコミの閲覧や、メッセージのやりとり(商談)ができます。

閉じる
  1. リフォームTOP
  2. 埼玉県
  3. さいたま市
  4. さいたま市浦和区
  5. 株式会社フレッシュハウス
  6. 海まで徒歩3分。好きを大切にする心弾む暮らし
事例一覧へ戻る

海まで徒歩3分。好きを大切にする心弾む暮らし

建物のタイプ マンション 価格 1,709万円
築年数 16〜20年 工期 3ヶ月以上
竣工年月日 2023年9月30日 構造 RC造
施工地 神奈川県 平塚市 リフォーム箇所 キッチントイレ洗面リビング洋室
家族構成 夫婦、子供3人

詳細情報

[テーマ]全面改装 、 デザイン重視 、 趣味や嗜好を中心に

お客さまのご要望

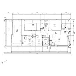
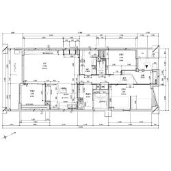
傷んできた水回りを入れ替えたい。子供が大きくなったのでもっと住みやすい間取りにしたい。サーフィンなどをやるので西海岸風のイメージに。土間を作りたい。和室を洋室に変えてリビングを広くしたい。

リフォーム会社のご提案

一目ぼれしたという持ち込みの壁紙を使い、こだわりのデザインの実現に努めました。サーフィンから帰った後、素足で過ごされることも多いのでLDの床はテラコッタのタイル、天井は漆喰にして自然素材を使いました。洗面台をはじめ、キッチン、テレビ、リビング収納は造作で作り、ルーバーの建具なども特注しています。お子様3人のスペースを作り、LDの一角を引き戸で分けて夫婦の寝室とし、状況に応じてリビングとしても使えるようにしました。

Before

Before

After

After

キッチンの両サイドに収納を設け、効率的な動線に

キッチンの両サイドに収納を設け、効率的な動線に
建物のタイプ マンション
価格 400万円(単独工事をする場合の概算です)
築年数 16〜20年
工期(全体) 3ヶ月以上
面積 7.00m²
その他採用機器・設備
施工地 神奈川県 平塚市
家族構成 夫婦、子供3人

詳細情報:

[テーマ] / メーカー:Panasonic / 商品名:Lクラス / レイアウト:壁付:II型 / 調理器具:IH / ビルトイン食器洗い乾燥機:有り

リフォーム会社のご提案

一目ぼれしたという持ち込みの壁紙を使い、こだわりのデザインの実現に努めました。サーフィンから帰った後、素足で過ごされることも多いのでLDの床はテラコッタのタイル、天井は漆喰にして自然素材を使いました。洗面台をはじめ、キッチン、テレビ、リビング収納は造作で作り、ルーバーの建具なども特注しています。お子様3人のスペースを作り、LDの一角を引き戸で分けて夫婦の寝室とし、状況に応じてリビングとしても使えるようにしました。

Before

Before

After

After

一目ぼれした壁紙をアクセントウォールでここに。

一目ぼれした壁紙をアクセントウォールでここに。
建物のタイプ マンション
価格 60万円(単独工事をする場合の概算です)
築年数 16〜20年
工期(全体) 3ヶ月以上
面積  
その他採用機器・設備
施工地 神奈川県 平塚市
家族構成 夫婦、子供3人

詳細情報:

[テーマ] / メーカー:Panasonic / 商品名:アラウーノ / 種別:洋式:タンクレス / 温水洗浄便座:有り / 節水(6リットル以下):有り

リフォーム会社のご提案

一目ぼれしたという持ち込みの壁紙を使い、こだわりのデザインの実現に努めました。サーフィンから帰った後、素足で過ごされることも多いのでLDの床はテラコッタのタイル、天井は漆喰にして自然素材を使いました。洗面台をはじめ、キッチン、テレビ、リビング収納は造作で作り、ルーバーの建具なども特注しています。お子様3人のスペースを作り、LDの一角を引き戸で分けて夫婦の寝室とし、状況に応じてリビングとしても使えるようにしました。

Before

Before

After

After

木目を生かした造作洗面台ですっきりとおしゃれを実現

木目を生かした造作洗面台ですっきりとおしゃれを実現
建物のタイプ マンション
価格 70万円(単独工事をする場合の概算です)
築年数 16〜20年
工期(全体) 3ヶ月以上
面積  
その他採用機器・設備
施工地 神奈川県 平塚市
家族構成 夫婦、子供3人

詳細情報:

[テーマ] / メーカー:その他 / 間口:指定なし / 造作:有り

リフォーム会社のご提案

一目ぼれしたという持ち込みの壁紙を使い、こだわりのデザインの実現に努めました。サーフィンから帰った後、素足で過ごされることも多いのでLDの床はテラコッタのタイル、天井は漆喰にして自然素材を使いました。洗面台をはじめ、キッチン、テレビ、リビング収納は造作で作り、ルーバーの建具なども特注しています。お子様3人のスペースを作り、LDの一角を引き戸で分けて夫婦の寝室とし、状況に応じてリビングとしても使えるようにしました。

Before

Before

After

After

海まで徒歩3分。好きを大切にする心弾む暮らし

海まで徒歩3分。好きを大切にする心弾む暮らし
建物のタイプ マンション
価格 120万円(単独工事をする場合の概算です)
築年数 16〜20年
工期(全体) 3ヶ月以上
面積 26.20m²
その他採用機器・設備
施工地 神奈川県 平塚市
家族構成 夫婦、子供3人

詳細情報:

[テーマ] 全面改装 、 デザイン重視 、 趣味や嗜好を中心に / 商品名:名古屋モザイク ERMーR1030 / 間取り変更:有り / 素材:タイル / 広さ:13畳〜16畳(〜約26㎡) / 和洋変更:和室→洋室

リフォーム会社のご提案

一目ぼれしたという持ち込みの壁紙を使い、こだわりのデザインの実現に努めました。サーフィンから帰った後、素足で過ごされることも多いのでLDの床はテラコッタのタイル、天井は漆喰にして自然素材を使いました。洗面台をはじめ、キッチン、テレビ、リビング収納は造作で作り、ルーバーの建具なども特注しています。お子様3人のスペースを作り、LDの一角を引き戸で分けて夫婦の寝室とし、状況に応じてリビングとしても使えるようにしました。

Before

Before

After

After

将来はリビングのワークスペース

将来はリビングのワークスペース
建物のタイプ マンション
価格 50万円(単独工事をする場合の概算です)
築年数 16〜20年
工期(全体) 3ヶ月以上
面積 6.98m²
その他採用機器・設備
施工地 神奈川県 平塚市
家族構成 夫婦、子供3人

詳細情報:

[テーマ] / 用途:寝室 / 素材:タイル / 広さ:〜6畳(〜約10㎡)

リフォーム会社のご提案

一目ぼれしたという持ち込みの壁紙を使い、こだわりのデザインの実現に努めました。サーフィンから帰った後、素足で過ごされることも多いのでLDの床はテラコッタのタイル、天井は漆喰にして自然素材を使いました。洗面台をはじめ、キッチン、テレビ、リビング収納は造作で作り、ルーバーの建具なども特注しています。お子様3人のスペースを作り、LDの一角を引き戸で分けて夫婦の寝室とし、状況に応じてリビングとしても使えるようにしました。

Before

Before

After

After

このようなリフォームを実現できる
お近くのリフォーム会社を、複数社ご紹介!

よく似た事例

最近見た事例

このようなリフォームを実現できる
お近くのリフォーム会社を、複数社ご紹介!

事例一覧へ戻る
ページの
先頭へ