比べて、選べる。リフォーム会社紹介サイト「ホームプロ」

会員ページでは、お申込みいただいた内容に対応できるリフォーム会社を紹介しています。各社の会社情報、評価・クチコミの閲覧や、メッセージのやりとり(商談)ができます。

閉じる
  1. リフォームTOP
  2. 神奈川県
  3. 横須賀市
  4. 株式会社建新
  5. お家時間を皆で楽しむ、家族の好きが詰まった住まい
事例一覧へ戻る

お家時間を皆で楽しむ、家族の好きが詰まった住まい

建物のタイプ マンション 価格 620万円
築年数 16〜20年 工期 2ヶ月
竣工年月日 構造 RC造
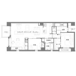
施工地 神奈川県 茅ヶ崎市 リフォーム箇所 トイレリビングダイニング洋室
家族構成 夫婦、子供1人

詳細情報

[テーマ]明るく広々 、 趣味や嗜好を中心に 、 自然素材・木質感

お客さまのご要望

都内からの住み替えをご検討されていたご家族。リゾートホテルライクな内装かつ、サウンドにこだわったシアタールームのような広々としたリビングがある家がご希望でした。

リフォーム会社のご提案

奥様の求める「ホテルライク」と、ご主人の求める「家族でくつろげるリビング」の二つを軸にプランニング。 腰壁やアクセントクロスでメリハリをつけることで、西海岸風ホテルのような様子に。居室だった場所との壁を取り払うことで、リビングを広げ、開放的な空間となりました。 エタノール暖炉の上に大きなテレビを置けるようにすることで、豪華なシアタールームの完成です。

Before

Before

縦長のLDKで少し手狭な印象。西海岸風ホテルのイメージを叶えるため内装全面の変更は必須でした。

After

After

シアタールームのようなリビングを作るため洋室部分をリビングに拡張。その他の間取りを変更しなかったため、低コストでリノベーションを実施できました。

腰壁でホテルライクな印象に

腰壁でホテルライクな印象に
建物のタイプ マンション
価格 40万円(単独工事をする場合の概算です)
築年数 16〜20年
工期(全体) 2ヶ月
面積  
その他採用機器・設備
施工地 神奈川県 茅ヶ崎市
家族構成 夫婦、子供1人

詳細情報:

[テーマ] / メーカー:指定なし / 種別:指定なし

リフォーム会社のご提案

奥様の求める「ホテルライク」と、ご主人の求める「家族でくつろげるリビング」の二つを軸にプランニング。 腰壁やアクセントクロスでメリハリをつけることで、西海岸風ホテルのような様子に。居室だった場所との壁を取り払うことで、リビングを広げ、開放的な空間となりました。 エタノール暖炉の上に大きなテレビを置けるようにすることで、豪華なシアタールームの完成です。

エタノール暖炉付きシアタールーム

エタノール暖炉付きシアタールーム
建物のタイプ マンション
価格 200万円(単独工事をする場合の概算です)
築年数 16〜20年
工期(全体) 2ヶ月
面積  
その他採用機器・設備
施工地 神奈川県 茅ヶ崎市
家族構成 夫婦、子供1人

詳細情報:

[テーマ] / 素材:指定なし / 広さ:指定なし

リフォーム会社のご提案

奥様の求める「ホテルライク」と、ご主人の求める「家族でくつろげるリビング」の二つを軸にプランニング。 腰壁やアクセントクロスでメリハリをつけることで、西海岸風ホテルのような様子に。居室だった場所との壁を取り払うことで、リビングを広げ、開放的な空間となりました。 エタノール暖炉の上に大きなテレビを置けるようにすることで、豪華なシアタールームの完成です。

木目の天井が印象的なダイニング

木目の天井が印象的なダイニング
建物のタイプ マンション
価格 80万円(単独工事をする場合の概算です)
築年数 16〜20年
工期(全体) 2ヶ月
面積  
その他採用機器・設備
施工地 神奈川県 茅ヶ崎市
家族構成 夫婦、子供1人

詳細情報:

[テーマ] / 素材:指定なし / 広さ:指定なし

リフォーム会社のご提案

奥様の求める「ホテルライク」と、ご主人の求める「家族でくつろげるリビング」の二つを軸にプランニング。 腰壁やアクセントクロスでメリハリをつけることで、西海岸風ホテルのような様子に。居室だった場所との壁を取り払うことで、リビングを広げ、開放的な空間となりました。 エタノール暖炉の上に大きなテレビを置けるようにすることで、豪華なシアタールームの完成です。

さわやかなベッドルーム

さわやかなベッドルーム
建物のタイプ マンション
価格 50万円(単独工事をする場合の概算です)
築年数 16〜20年
工期(全体) 2ヶ月
面積  
その他採用機器・設備
施工地 神奈川県 茅ヶ崎市
家族構成 夫婦、子供1人

詳細情報:

[テーマ] / 用途:指定なし / 素材:指定なし / 広さ:指定なし

リフォーム会社のご提案

奥様の求める「ホテルライク」と、ご主人の求める「家族でくつろげるリビング」の二つを軸にプランニング。 腰壁やアクセントクロスでメリハリをつけることで、西海岸風ホテルのような様子に。居室だった場所との壁を取り払うことで、リビングを広げ、開放的な空間となりました。 エタノール暖炉の上に大きなテレビを置けるようにすることで、豪華なシアタールームの完成です。

施工会社:株式会社建新

このようなリフォームを実現できる
お近くのリフォーム会社を、複数社ご紹介!

よく似た事例

最近見た事例

このようなリフォームを実現できる
お近くのリフォーム会社を、複数社ご紹介!

事例一覧へ戻る
ページの
先頭へ