比べて、選べる。リフォーム会社紹介サイト「ホームプロ」

会員ページでは、お申込みいただいた内容に対応できるリフォーム会社を紹介しています。各社の会社情報、評価・クチコミの閲覧や、メッセージのやりとり(商談)ができます。

閉じる
  1. リフォームTOP
  2. 埼玉県
  3. さいたま市
  4. さいたま市浦和区
  5. 株式会社フレッシュハウス
  6. ペニンシュラ型のキッチンで穏やかな暮らし
事例一覧へ戻る

ペニンシュラ型のキッチンで穏やかな暮らし

建物のタイプ マンション 価格 728万円
築年数 21〜25年 工期 2ヶ月
竣工年月日 2025年11月28日 構造 RC造
施工地 愛知県 半田市 リフォーム箇所 キッチン・台所トイレ洗面所・脱衣所リビング
家族構成 一人暮らし

詳細情報

[テーマ]間取り変更・スケルトン 、 明るく広々 、 自然素材・木質感

お客さまのご要望

設備の取り換えのタイミングに合わせ、一人で快適に過ごせる空間にしたい。垂れ壁・吊戸棚を撤去してアイランドキッチンにしたい。

リフォーム会社のご提案

アイランドキッチンにしたいとのご要望でしたが、マンションで移動できないパイプスペースやインターホン等があったためにペニンシュラ型をご提案しました。 少し古く感じる内装も一新して、華美な色あいではなく白を基調とした明るくシンプルな内装で、飽きのこない空間づくりを目指しました。

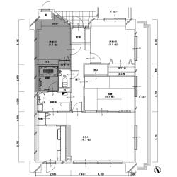
Before

Before

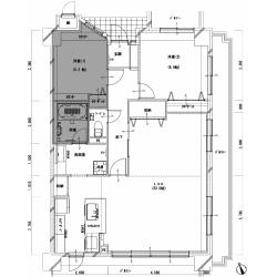
After

After

ペニンシュラ型のキッチンで穏やかな暮らし

ペニンシュラ型のキッチンで穏やかな暮らし
建物のタイプ マンション
価格 115万円(単独工事をする場合の概算です)
築年数 21〜25年
工期(全体) 2ヶ月
面積  
その他採用機器・設備
施工地 愛知県 半田市
家族構成 一人暮らし

詳細情報:

[テーマ] / メーカー:LIXIL(旧サンウエーブ他) / 商品名:ノクト / レイアウト:指定なし / 調理器具:IH

リフォーム会社のご提案

アイランドキッチンにしたいとのご要望でしたが、マンションで移動できないパイプスペースやインターホン等があったためにペニンシュラ型をご提案しました。 少し古く感じる内装も一新して、華美な色あいではなく白を基調とした明るくシンプルな内装で、飽きのこない空間づくりを目指しました。

Before

Before

After

After

コンパクトな手洗いのトイレ

コンパクトな手洗いのトイレ
建物のタイプ マンション
価格 27万円(単独工事をする場合の概算です)
築年数 21〜25年
工期(全体) 2ヶ月
面積 1.60m²
その他採用機器・設備
施工地 愛知県 半田市
家族構成 一人暮らし

詳細情報:

[テーマ] / メーカー:LIXIL(旧INAX他) / 商品名:プレアスLS / 種別:洋式:タンクレス / 温水洗浄便座:有り / 節水(6リットル以下):有り / 別置き手洗い器:有り

お客さまのご要望

水まわり設備の交換に合わせ、内装も一新したい。

リフォーム会社のご提案

以前は大きな手洗いで圧迫感があったので、コンパクトなタイプを選びました。

Before

Before

After

After

座って使えるカウンター付洗面台

座って使えるカウンター付洗面台
建物のタイプ マンション
価格 30万円(単独工事をする場合の概算です)
築年数 21〜25年
工期(全体) 2ヶ月
面積 4.00m²
その他採用機器・設備 Panasonic Cライン
施工地 愛知県 半田市
家族構成 一人暮らし

詳細情報:

[テーマ] / メーカー:Panasonic / 商品名:Cライン / 間口:指定なし / その他採用機器・設備:Panasonic Cライン

お客さまのご要望

設備交換のタイミングで、長く快適に暮らせるように間取りも使い勝手も見直したい。

リフォーム会社のご提案

必要な収納量も変わったので、洗面台のカウンターを伸ばして腰かけて使えるテーブルのようにしました。メイクはもちろん洗濯物を畳んだりアイロンがけもここでできます。

Before

Before

After

After

光あふれるリビングで暮らしたい。

光あふれるリビングで暮らしたい。
建物のタイプ マンション
価格 50万円(単独工事をする場合の概算です)
築年数 21〜25年
工期(全体) 2ヶ月
面積 39.00m²
その他採用機器・設備
施工地 愛知県 半田市
家族構成 一人暮らし

詳細情報:

[テーマ] 明るく広々 / 間取り変更:有り / 素材:指定なし / 広さ:指定なし / 和洋変更:和室→洋室

リフォーム会社のご提案

アイランドキッチンにしたいとのご要望でしたが、マンションで移動できないパイプスペースやインターホン等があったためにペニンシュラ型をご提案しました。 少し古く感じる内装も一新して、華美な色あいではなく白を基調とした明るくシンプルな内装で、飽きのこない空間づくりを目指しました。

Before

Before

After

After

このようなリフォームを実現できる
お近くのリフォーム会社を、複数社ご紹介!

よく似た事例

最近見た事例

このようなリフォームを実現できる
お近くのリフォーム会社を、複数社ご紹介!

事例一覧へ戻る
ページの
先頭へ