比べて、選べる。リフォーム会社紹介サイト「ホームプロ」

会員ページでは、お申込みいただいた内容に対応できるリフォーム会社を紹介しています。各社の会社情報、評価・クチコミの閲覧や、メッセージのやりとり(商談)ができます。

閉じる
  1. リフォームTOP
  2. 東京都
  3. 八王子市
  4. 株式会社 エンラージ (一級建築士事務所)
  5. 中古マンション購入からフルリノベーションまでワンストップ
事例一覧へ戻る

中古マンション購入からフルリノベーションまでワンストップ

建物のタイプ マンション 価格 1,300万円
築年数 26〜30年 工期 3ヶ月以上
竣工年月日 構造 RC造
施工地 東京都 八王子市 リフォーム箇所 キッチン浴室・バストイレ洗面リビング
家族構成 夫婦、子ども

詳細情報

[テーマ]中古を買う 、 リノベーション 、 デザイン重視

お客さまのご要望

物件探しからリノベーションまで一括して任せたい。

リフォーム会社のご提案

中古物件探し・中古物件のご契約からリノベーションプランの作成・お見積り・リノベーションの施工まで、すべてワンストップでお任せいただきました。

Before

Before

After

After

デザイン性・機能性にこだわったキッチン

デザイン性・機能性にこだわったキッチン
建物のタイプ マンション
価格 220万円(単独工事をする場合の概算です)
築年数 26〜30年
工期(全体) 3ヶ月以上
面積  
その他採用機器・設備
施工地 東京都 八王子市
家族構成 夫婦、子ども

詳細情報:

[テーマ] リノベーション 、 明るく広々 、 デザイン重視 / メーカー:LIXIL(旧サンウエーブ他) / 商品名:ノクト / レイアウト:対面:ペニンシュラ型 / [扉]カラー:ベージュ / 調理器具:ガス / ビルトイン食器洗い乾燥機:有り

リフォーム会社のご提案

インテリアと調和するデザイン性、収納量、使いやすさを考慮した設備をご提案。

Before

Before

After

After

心からリラックスできるお風呂

心からリラックスできるお風呂
建物のタイプ マンション
価格 120万円(単独工事をする場合の概算です)
築年数 26〜30年
工期(全体) 3ヶ月以上
面積  
その他採用機器・設備
施工地 東京都 八王子市
家族構成 夫婦、子ども

詳細情報:

[テーマ] リノベーション 、 省エネ 、 断熱・気密 / メーカー:TOTO / 商品名:マンションリモデル / 種別:システムバス(ユニットバス) / サイズ:指定なし / カラー:茶 / 保温浴槽:有り / 浴室暖房乾燥機:有り

リフォーム会社のご提案

安定できる形を追求したゆるリラ浴槽、お掃除ラクラクほっカラリ床、換気暖房乾燥機を採用し、リラックスできて家事ラクなお風呂になりました。

コンパクトなタンクレストイレ

コンパクトなタンクレストイレ
建物のタイプ マンション
価格 60万円(単独工事をする場合の概算です)
築年数 26〜30年
工期(全体) 3ヶ月以上
面積  
その他採用機器・設備
施工地 東京都 八王子市
家族構成 夫婦、子ども

詳細情報:

[テーマ] リノベーション 、 省エネ 、 デザイン重視 / メーカー:TOTO / 商品名:ネオレスト / 種別:洋式:タンクレス / カラー:白 / 温水洗浄便座:有り / 節水(6リットル以下):有り

リフォーム会社のご提案

清掃性・デザイン性に優れたコンパクトなボディのタンクレストイレを採用。

こだわりの造作洗面

こだわりの造作洗面
建物のタイプ マンション
価格 80万円(単独工事をする場合の概算です)
築年数 26〜30年
工期(全体) 3ヶ月以上
面積  
その他採用機器・設備
施工地 東京都 八王子市
家族構成 夫婦、子ども

詳細情報:

[テーマ] リノベーション 、 収納充実 、 デザイン重視 / メーカー:指定なし / 間口:指定なし

リフォーム会社のご提案

造作で幅150cmのゆとりのある洗面台を実現。カウンター下には収納スペースをたっぷりと確保。

ジャパンディデザインでコーディネート

ジャパンディデザインでコーディネート
建物のタイプ マンション
価格 400万円(単独工事をする場合の概算です)
築年数 26〜30年
工期(全体) 3ヶ月以上
面積  
その他採用機器・設備
施工地 東京都 八王子市
家族構成 夫婦、子ども

詳細情報:

[テーマ] 中古を買う 、 リノベーション 、 デザイン重視 / 素材:指定なし / 広さ:指定なし

リフォーム会社のご提案

お好みにぴったりの素敵な空間に仕上がるようコーディネートしました。 LDKの壁の一面には、気になる匂いを減らし調湿効果を持つエコカラットを採用し、上部には空間を優しく包み込む間接照明を設けました。

Before

Before

After

After

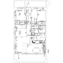
LDKに隣接していた和室を洋室化して一体化。LDKのメインの出入口とは別に、旧和室側へ直接アクセスできる扉を新設して、可変性のある間取りを実現。

このようなリフォームを実現できる
お近くのリフォーム会社を、複数社ご紹介!

よく似た事例

最近見た事例

このようなリフォームを実現できる
お近くのリフォーム会社を、複数社ご紹介!

事例一覧へ戻る
ページの
先頭へ