比べて、選べる。リフォーム会社紹介サイト「ホームプロ」

会員ページでは、お申込みいただいた内容に対応できるリフォーム会社を紹介しています。各社の会社情報、評価・クチコミの閲覧や、メッセージのやりとり(商談)ができます。

閉じる
  1. リフォームTOP
  2. 長崎県
  3. 長崎市
  4. 株式会社中村工務店
  5. 築年数を感じさせない、上質グレーのリノベーション空間
事例一覧へ戻る

築年数を感じさせない、上質グレーのリノベーション空間

建物のタイプ マンション 価格 540万円
築年数 26〜30年 工期 1ヶ月
竣工年月日 2025年9月30日 構造 RC造
施工地 長崎県 長崎市 リフォーム箇所 キッチン浴室・バストイレ洗面リビング
家族構成 夫婦

詳細情報

[テーマ]間取り変更・スケルトン 、 中古を買う 、 デザイン重視

お客さまのご要望

中古マンションを購入されたK様。築年数の経過により水まわり設備の老朽化や床・壁の傷みを感じられたことをきっかけに、今回のリフォームをご決断。 お客様のご要望… 【1】全体的に暗めのトーンで落ち着いた雰囲気にしたい、【2】ホテルのような上質な空間にしたい

リフォーム会社のご提案

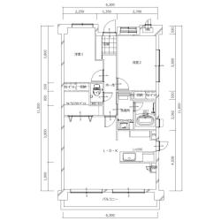
当社モデルハウス「アイアンマン」をご見学いただき、実際の空間や素材感を体感されたことで、「こんな雰囲気にしたい」というイメージがより明確に。 そこからデザインや色味の方向性が固まり、理想の住まいづくりがスムーズに進みました。 リフォーム前は洋室2部屋、和室1部屋の3LDKの間取りでしたが、リビングに隣接する6帖の和室を撤去し、大空間のLDKにリノベーションするプランをご提案しました。

Before

Before

リフォーム前は洋室2部屋、和室1部屋の3LDKの間取りでしたが、お客様の理想とする〝ホテルライクな住まい〟を実現するには、広々とした住空間に再生させる必要があると考えました。

After

After

リビングに隣接する6帖の和室を撤去し、大空間のLDKにリノベーションするプランをご提案。 和室の押し入れをウォークインクローゼットに変えることで、生活必需品や衣服の収納量を増やし、生活感を抑えるデザインに仕上げました。

デザイン性と使いやすさを兼ね備えたキッチン

デザイン性と使いやすさを兼ね備えたキッチン
建物のタイプ マンション
価格 120万円(単独工事をする場合の概算です)
築年数 26〜30年
工期(全体) 1ヶ月
面積  
その他採用機器・設備 ⽔栓:LIXIL タッチレス水栓、 IH:Panasonic Lシリーズ ビルトインIHクッキングヒーター、 ⾷洗器:Panasonic 浅型⾷洗器、 カップボード:TOTO ミッテ
施工地 長崎県 長崎市
家族構成 夫婦

詳細情報:

[テーマ] 間取り変更・スケルトン 、 デザイン重視 / メーカー:Panasonic / 商品名:ラクシーナ / レイアウト:対面:ペニンシュラ型 / [扉]カラー:グレー / 調理器具:IH / その他採用機器・設備:⽔栓:LIXIL タッチレス水栓、 IH:Panasonic Lシリーズ ビルトインIHクッキングヒーター、 ⾷洗器:Panasonic 浅型⾷洗器、 カップボード:TOTO ミッテ

リフォーム会社のご提案

当社モデルハウス「アイアンマン」をご見学いただき、実際の空間や素材感を体感されたことで、「こんな雰囲気にしたい」というイメージがより明確に。 そこからデザインや色味の方向性が固まり、理想の住まいづくりがスムーズに進みました。 リフォーム前は洋室2部屋、和室1部屋の3LDKの間取りでしたが、リビングに隣接する6帖の和室を撤去し、大空間のLDKにリノベーションするプランをご提案しました。

Before

Before

水まわり設備機器は老朽化していました。

After

After

デザイン性と使いやすさを兼ね備えたパナソニック「ラクシーナ」のキッチンで、毎日の料理時間をより快適に。シックな色合いが空間全体を引き締め、上質な印象を演出します。

黒でまとめたシックな浴室

黒でまとめたシックな浴室
建物のタイプ マンション
価格 100万円(単独工事をする場合の概算です)
築年数 26〜30年
工期(全体) 1ヶ月
面積  
その他採用機器・設備
施工地 長崎県 長崎市
家族構成 夫婦

詳細情報:

[テーマ] デザイン重視 / メーカー:TOTO / 商品名:サザナ / 種別:システムバス(ユニットバス) / サイズ:〜0.75坪(1216〜1317) / カラー:黒

リフォーム会社のご提案

当社モデルハウス「アイアンマン」をご見学いただき、実際の空間や素材感を体感されたことで、「こんな雰囲気にしたい」というイメージがより明確に。 そこからデザインや色味の方向性が固まり、理想の住まいづくりがスムーズに進みました。 リフォーム前は洋室2部屋、和室1部屋の3LDKの間取りでしたが、リビングに隣接する6帖の和室を撤去し、大空間のLDKにリノベーションするプランをご提案しました。

Before

Before

築年数の経過により水まわり設備が老朽化していました。

After

After

バスルームは、上質な黒でまとめたTOTO「サザナ」。やわらかな床の踏み心地と快適な入浴機能で、日々の疲れを癒すリラックス空間を演出します。

クロスと調和したスタイリッシュなトイレ空間

クロスと調和したスタイリッシュなトイレ空間
建物のタイプ マンション
価格 20万円(単独工事をする場合の概算です)
築年数 26〜30年
工期(全体) 1ヶ月
面積  
その他採用機器・設備
施工地 長崎県 長崎市
家族構成 夫婦

詳細情報:

[テーマ] 収納充実 / メーカー:LIXIL(旧INAX他) / 商品名:アメージュシャワートイレ / 種別:洋式:タンク式 / カラー:白 / カラー:ベージュ

リフォーム会社のご提案

当社モデルハウス「アイアンマン」をご見学いただき、実際の空間や素材感を体感されたことで、「こんな雰囲気にしたい」というイメージがより明確に。 そこからデザインや色味の方向性が固まり、理想の住まいづくりがスムーズに進みました。 リフォーム前は洋室2部屋、和室1部屋の3LDKの間取りでしたが、リビングに隣接する6帖の和室を撤去し、大空間のLDKにリノベーションするプランをご提案しました。

Before

Before

築年数の経過により水まわり設備が老朽化していました。

After

After

スリムなフォルムと機能性を両立したLIXIL「アメージュ シャワートイレ」。やわらかな曲線模様のクロスと調和し、清潔感とデザイン性を兼ね備えた空間に仕上がりました。 トイレの壁には、やわらかな曲線が印象的なモダンなクロスを採用。空間に動きと奥行きをもたらし、スタイリッシュな印象に仕上げました。

シャープでしっかりしまえる洗面化粧台

シャープでしっかりしまえる洗面化粧台
建物のタイプ マンション
価格 35万円(単独工事をする場合の概算です)
築年数 26〜30年
工期(全体) 1ヶ月
面積  
その他採用機器・設備
施工地 長崎県 長崎市
家族構成 夫婦

詳細情報:

[テーマ] 収納充実 、 デザイン重視 / メーカー:TOTO / 商品名:オクターブライト / 間口:601mm〜750mm / カラー:黒

リフォーム会社のご提案

当社モデルハウス「アイアンマン」をご見学いただき、実際の空間や素材感を体感されたことで、「こんな雰囲気にしたい」というイメージがより明確に。 そこからデザインや色味の方向性が固まり、理想の住まいづくりがスムーズに進みました。 リフォーム前は洋室2部屋、和室1部屋の3LDKの間取りでしたが、リビングに隣接する6帖の和室を撤去し、大空間のLDKにリノベーションするプランをご提案しました。

Before

Before

築年数の経過により水まわり設備が老朽化していました。

After

After

洗面化粧台には、シャープなデザインと収納力を兼ね備えたTOTO「オクターブライト」を採用。 シックなカラーでまとめ、清潔感の中にも上質さを感じる洗面空間を実現しています。

和室を解体して広々リビングに

和室を解体して広々リビングに
建物のタイプ マンション
価格 100万円(単独工事をする場合の概算です)
築年数 26〜30年
工期(全体) 1ヶ月
面積  
その他採用機器・設備 クローゼットドア 1間:Panasonic ベリティス
施工地 長崎県 長崎市
家族構成 夫婦

詳細情報:

[テーマ] 間取り変更・スケルトン 、 デザイン重視 / 商品名:サンゲツ フロアタイル / 間取り変更:有り / 素材:タイル / 広さ:指定なし / 和洋変更:和室→洋室 / その他採用機器・設備:クローゼットドア 1間:Panasonic ベリティス

リフォーム会社のご提案

当社モデルハウス「アイアンマン」をご見学いただき、実際の空間や素材感を体感されたことで、「こんな雰囲気にしたい」というイメージがより明確に。 そこからデザインや色味の方向性が固まり、理想の住まいづくりがスムーズに進みました。 リフォーム前は洋室2部屋、和室1部屋の3LDKの間取りでしたが、リビングに隣接する6帖の和室を撤去し、大空間のLDKにリノベーションするプランをご提案しました。

Before

Before

リフォーム前のLDKには、6帖の和室が隣接していました。 既存の床は良好な状態でした。

After

After

リビングに隣接する和室を解体し、LDKの面積を広げる間取り変更を行いました。 和室部分は下地を新しく組み、LDKとフラットにつながるよう丁寧に仕上げています。 和室の仕切りをなくしたことで開放的なLDKになりました。 床はデザイン性と耐久性を兼ね備えたフロアタイルで、上張り施工を行っています。

このようなリフォームを実現できる
お近くのリフォーム会社を、複数社ご紹介!

よく似た事例

最近見た事例

このようなリフォームを実現できる
お近くのリフォーム会社を、複数社ご紹介!

事例一覧へ戻る
ページの
先頭へ