比べて、選べる。リフォーム会社紹介サイト「ホームプロ」

会員ページでは、お申込みいただいた内容に対応できるリフォーム会社を紹介しています。各社の会社情報、評価・クチコミの閲覧や、メッセージのやりとり(商談)ができます。

閉じる
  1. リフォームTOP
  2. 大阪府
  3. 豊中市
  4. 株式会社多賀工務店
  5. アクセントはGreen!涼やか2Fリノベーション
事例一覧へ戻る

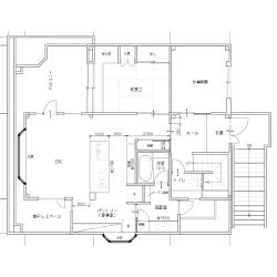
アクセントはGreen!涼やか2Fリノベーション

建物のタイプ 戸建住宅 価格 1,000万円
築年数 30年以上 工期 1ヶ月
竣工年月日 構造 不明
施工地 大阪府 大阪市旭区 リフォーム箇所 キッチン浴室・バス洗面リビング廊下その他
家族構成 ご夫婦

詳細情報

[テーマ]間取り変更・スケルトン 、 2世帯・3世帯同居 、 デザイン重視

お客さまのご要望

・アイランドキッチンと大型食洗機を採用したい ・3世代でくつろげるLDKにしたい ・家事室が欲しい

リフォーム会社のご提案

・構造上、どうしても抜けない柱がありましたが、W2700のアイランドキッチンを納められるようプラン ・お父様のお部屋を8畳から6畳に縮小し、凸凹のないスッキリとした動線のLDKへ ・既存キッチンのあったスペースを洗面・浴室スペースへとつながる家事室へ

Before

Before

After

After

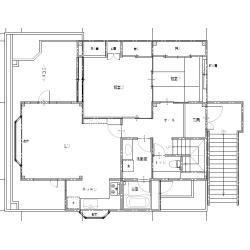
アクセントはGreen!涼やか2Fリノベーション

アクセントはGreen!涼やか2Fリノベーション
建物のタイプ 戸建住宅
価格 250万円(単独工事をする場合の概算です)
築年数 30年以上
工期(全体) 1ヶ月
面積  
その他採用機器・設備
施工地 大阪府 大阪市旭区
家族構成 ご夫婦

詳細情報:

[テーマ] 間取り変更・スケルトン 、 2世帯・3世帯同居 、 デザイン重視 / メーカー:Panasonic / 商品名:Sクラス / レイアウト:対面:アイランド型 / [扉]カラー:グレー / 調理器具:IH / ビルトイン食器洗い乾燥機:有り

お客さまのご要望

・アイランドキッチンと大型食洗機を採用したい ・3世代でくつろげるLDKにしたい ・家事室が欲しい

リフォーム会社のご提案

・構造上、どうしても抜けない柱がありましたが、W2700のアイランドキッチンを納められるようプラン ・お父様のお部屋を8畳から6畳に縮小し、凸凹のないスッキリとした動線のLDKへ ・既存キッチンのあったスペースを洗面・浴室スペースへとつながる家事室へ

Before

Before

After

After

Before

Before

After

After

清掃性抜群!シンプルだけど高級感漂うバスルーム

清掃性抜群!シンプルだけど高級感漂うバスルーム
建物のタイプ 戸建住宅
価格 90万円(単独工事をする場合の概算です)
築年数 30年以上
工期(全体) 1ヶ月
面積  
その他採用機器・設備
施工地 大阪府 大阪市旭区
家族構成 ご夫婦

詳細情報:

[テーマ] 間取り変更・スケルトン 、 バリアフリー 、 デザイン重視 / メーカー:タカラスタンダード / 商品名:グランスパ / 種別:システムバス(ユニットバス) / サイズ:1坪(1616、1717) / カラー:白 / カラー:ベージュ / 保温浴槽:有り / 浴室暖房乾燥機:有り

リフォーム会社のご提案

・構造上、どうしても抜けない柱がありましたが、W2700のアイランドキッチンを納められるようプラン ・お父様のお部屋を8畳から6畳に縮小し、凸凹のないスッキリとした動線のLDKへ ・既存キッチンのあったスペースを洗面・浴室スペースへとつながる家事室へ

Before

Before

After

After

Before

Before

After

After

洗面室はBlueで爽やかに

洗面室はBlueで爽やかに
建物のタイプ 戸建住宅
価格 65万円(単独工事をする場合の概算です)
築年数 30年以上
工期(全体) 1ヶ月
面積  
その他採用機器・設備
施工地 大阪府 大阪市旭区
家族構成 ご夫婦

詳細情報:

[テーマ] 間取り変更・スケルトン 、 2世帯・3世帯同居 、 デザイン重視 / メーカー:タカラスタンダード / 商品名:エリーナ / 間口:901mm〜 / カラー:ベージュ

リフォーム会社のご提案

・構造上、どうしても抜けない柱がありましたが、W2700のアイランドキッチンを納められるようプラン ・お父様のお部屋を8畳から6畳に縮小し、凸凹のないスッキリとした動線のLDKへ ・既存キッチンのあったスペースを洗面・浴室スペースへとつながる家事室へ

Before

Before

After

After

アクセントはGreen!涼やか2Fリノベーション

アクセントはGreen!涼やか2Fリノベーション
建物のタイプ 戸建住宅
価格 70万円(単独工事をする場合の概算です)
築年数 30年以上
工期(全体) 1ヶ月
面積  
その他採用機器・設備 フローリング 朝日ウッドテック/ライブナチュラル/MSX
施工地 大阪府 大阪市旭区
家族構成 ご夫婦

詳細情報:

[テーマ] 間取り変更・スケルトン 、 2世帯・3世帯同居 、 デザイン重視 / 素材:指定なし / 広さ:指定なし / その他採用機器・設備:フローリング 朝日ウッドテック/ライブナチュラル/MSX

リフォーム会社のご提案

・構造上、どうしても抜けない柱がありましたが、W2700のアイランドキッチンを納められるようプラン ・お父様のお部屋を8畳から6畳に縮小し、凸凹のないスッキリとした動線のLDKへ ・既存キッチンのあったスペースを洗面・浴室スペースへとつながる家事室へ

Before

Before

After

After

間取りを整えてスッキリ美しい廊下へ

間取りを整えてスッキリ美しい廊下へ
建物のタイプ 戸建住宅
価格 60万円(単独工事をする場合の概算です)
築年数 30年以上
工期(全体) 1ヶ月
面積  
その他採用機器・設備
施工地 大阪府 大阪市旭区
家族構成 ご夫婦

詳細情報:

[テーマ] 間取り変更・スケルトン 、 2世帯・3世帯同居 、 デザイン重視 / 材質:指定なし

リフォーム会社のご提案

・構造上、どうしても抜けない柱がありましたが、W2700のアイランドキッチンを納められるようプラン ・お父様のお部屋を8畳から6畳に縮小し、凸凹のないスッキリとした動線のLDKへ ・既存キッチンのあったスペースを洗面・浴室スペースへとつながる家事室へ

美しく機能的な家事スペース

美しく機能的な家事スペース
建物のタイプ 戸建住宅
価格 50万円(単独工事をする場合の概算です)
築年数 30年以上
工期(全体) 1ヶ月
面積  
その他採用機器・設備 ランドリールームシステム収納/南海プライウッド製/W2950
施工地 大阪府 大阪市旭区
家族構成 ご夫婦

詳細情報:

[テーマ] 間取り変更・スケルトン 、 2世帯・3世帯同居 、 デザイン重視 / 詳細箇所:指定なし / その他採用機器・設備:ランドリールームシステム収納/南海プライウッド製/W2950

リフォーム会社のご提案

・構造上、どうしても抜けない柱がありましたが、W2700のアイランドキッチンを納められるようプラン ・お父様のお部屋を8畳から6畳に縮小し、凸凹のないスッキリとした動線のLDKへ ・既存キッチンのあったスペースを洗面・浴室スペースへとつながる家事室へ

このようなリフォームを実現できる
お近くのリフォーム会社を、複数社ご紹介!

よく似た事例

最近見た事例

このようなリフォームを実現できる
お近くのリフォーム会社を、複数社ご紹介!

事例一覧へ戻る
ページの
先頭へ