比べて、選べる。リフォーム会社紹介サイト「ホームプロ」

会員ページでは、お申込みいただいた内容に対応できるリフォーム会社を紹介しています。各社の会社情報、評価・クチコミの閲覧や、メッセージのやりとり(商談)ができます。

閉じる
  1. リフォームTOP
  2. 埼玉県
  3. さいたま市
  4. さいたま市浦和区
  5. 株式会社フレッシュハウス
  6. 行き止まりの無い、無駄なく動ける動線が暮らしやすい住まい
事例一覧へ戻る

行き止まりの無い、無駄なく動ける動線が暮らしやすい住まい

建物のタイプ マンション 価格 1,534万円
築年数 16〜20年 工期 3ヶ月以上
竣工年月日 2023年12月28日 構造 RC造
施工地 神奈川県 横浜市戸塚区 リフォーム箇所 キッチン浴室・バストイレ洗面
家族構成 一人暮らし

詳細情報

[テーマ]間取り変更・スケルトン 、 明るく広々 、 自然素材・木質感

お客さまのご要望

居住中のマンションを、終の住み家として快適に過ごせるようリノベーションしたい。設備の交換を含め、家事がしやすく、手入れがしやすい住まいにしたい。災害に備え、バリアフリーにしたい。自分のイメージはあるが、より良い提案をしてほしい。

リフォーム会社のご提案

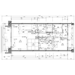
洗面、パントリー、キッチンを通ってDKに抜ける家事を効率的に進める動線と、廊下と並行して通る洋室、WIC(ウォークインクローゼット)、和室からDKに抜ける着替えを効率よく進める動線が、それぞれ回遊できるようになっていることで家事や生活の暮らしやすさの質を上げています。

Before

Before

After

After

回遊できるキッチンで家事がスムーズ

回遊できるキッチンで家事がスムーズ
建物のタイプ マンション
価格 250万円(単独工事をする場合の概算です)
築年数 16〜20年
工期(全体) 3ヶ月以上
面積  
その他採用機器・設備
施工地 神奈川県 横浜市戸塚区
家族構成 一人暮らし

詳細情報:

[テーマ] 間取り変更・スケルトン 、 明るく広々 、 自然素材・木質感 / メーカー:LIXIL(旧サンウエーブ他) / 商品名:リシェルSI / レイアウト:対面:ペニンシュラ型 / 調理器具:IH

お客さまのご要望

居住中のマンションを、終の住み家として快適に過ごせるようリノベーションしたい。設備の交換を含め、家事がしやすく、手入れがしやすい住まいにしたい。災害に備え、バリアフリーにしたい。自分のイメージはあるが、より良い提案をしてほしい。

リフォーム会社のご提案

洗面、パントリー、キッチンを通ってDKに抜ける家事を効率的に進める動線と、廊下と並行して通る洋室、WIC(ウォークインクローゼット)、和室からDKに抜ける着替えを効率よく進める動線が、それぞれ回遊できるようになっていることで家事や生活の暮らしやすさの質を上げています。

掃除がしやすい白の浴室

掃除がしやすい白の浴室
建物のタイプ マンション
価格 150万円(単独工事をする場合の概算です)
築年数 16〜20年
工期(全体) 3ヶ月以上
面積 2.50m²
その他採用機器・設備
施工地 神奈川県 横浜市戸塚区
家族構成 一人暮らし

詳細情報:

[テーマ] / メーカー:TOTO / 商品名:リモデルバスWYシリーズ / 種別:システムバス(ユニットバス) / サイズ:1坪(1616、1717) / 保温浴槽:有り

お客さまのご要望

水まわり設備を交換したい。手入れのしやすい製品に替えたい。

リフォーム会社のご提案

汚れの残りにくいシステムバスを選び、浴室換気乾燥機とランドリーバーを付けて、室内干しできるようにしました。

Before

Before

After

After

スタイリッシュなトイレ

スタイリッシュなトイレ
建物のタイプ マンション
価格 40万円(単独工事をする場合の概算です)
築年数 16〜20年
工期(全体) 3ヶ月以上
面積 1.50m²
その他採用機器・設備
施工地 神奈川県 横浜市戸塚区
家族構成 一人暮らし

詳細情報:

[テーマ] / メーカー:TOTO / 商品名:ネオレストRS3 / 種別:洋式:タンクレス / 温水洗浄便座:有り / 節水(6リットル以下):有り

リフォーム会社のご提案

洗面、パントリー、キッチンを通ってDKに抜ける家事を効率的に進める動線と、廊下と並行して通る洋室、WIC(ウォークインクローゼット)、和室からDKに抜ける着替えを効率よく進める動線が、それぞれ回遊できるようになっていることで家事や生活の暮らしやすさの質を上げています。

Before

Before

After

After

洗面ボウル、カウンターを広くして使いやすく

洗面ボウル、カウンターを広くして使いやすく
建物のタイプ マンション
価格 40万円(単独工事をする場合の概算です)
築年数 16〜20年
工期(全体) 3ヶ月以上
面積 4.00m²
その他採用機器・設備
施工地 神奈川県 横浜市戸塚区
家族構成 一人暮らし

詳細情報:

[テーマ] / メーカー:TOTO / 商品名:オクターブ / 間口:指定なし

リフォーム会社のご提案

洗面、パントリー、キッチンを通ってDKに抜ける家事を効率的に進める動線と、廊下と並行して通る洋室、WIC(ウォークインクローゼット)、和室からDKに抜ける着替えを効率よく進める動線が、それぞれ回遊できるようになっていることで家事や生活の暮らしやすさの質を上げています。

Before

Before

After

After

このようなリフォームを実現できる
お近くのリフォーム会社を、複数社ご紹介!

よく似た事例

最近見た事例

このようなリフォームを実現できる
お近くのリフォーム会社を、複数社ご紹介!

事例一覧へ戻る
ページの
先頭へ