比べて、選べる。リフォーム会社紹介サイト「ホームプロ」

会員ページでは、お申込みいただいた内容に対応できるリフォーム会社を紹介しています。各社の会社情報、評価・クチコミの閲覧や、メッセージのやりとり(商談)ができます。

閉じる
  1. リフォームTOP
  2. 大阪府
  3. 大阪市
  4. 大阪市西区
  5. 株式会社サンリフォーム
  6. 車椅子の母が快適に暮らせるように考えられた動線と間取り空間
事例一覧へ戻る

車椅子の母が快適に暮らせるように考えられた動線と間取り空間

建物のタイプ マンション 価格 600万円
築年数 11〜15年 工期 1ヶ月
竣工年月日 構造 RC造
施工地 大阪府 大阪市平野区 リフォーム箇所 キッチントイレ洗面洋室収納
家族構成 母親・娘

お客さまの声

数年前にも御社でリフォームをしてもらったこともあり仕上がりの美しさは期待通りでした。 ただ母親の介護としても仕様するので美しさだけでなく機能と動線そして自然光をとりいれたいという要望も伝えました。 車椅子の母も毎日の生活が快適になり、明るい光の入る間取りにとても満足しています。

リフォーム会社のご提案

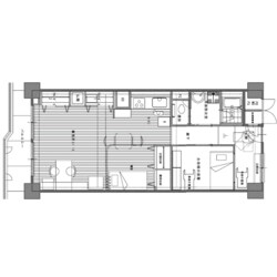
足が不自由な車椅子のお母様が入院先から帰ってこられるということで動線や設備はバリアフリーを考えて配置しました。 北側の個室がお母様の寝室ということで玄関サッシからの光を取り入れるよう寝室との壁にガラスブロックを使用し優しい光が入ってくるよう工夫しました。 また玄関には車椅子の回転スペースを設け壁際がデッドスペースにならないように壁面収納や玄関収納を設けてあります。 玄関からお母様の寝室の入口には車椅子のタイヤ傷にも強い店舗用の重歩行シートを使用し外からの汚れをカットし滑らかな歩行を可能にしています。 建具はすべてバリアフリー対応のもので段差は玄関からの緩いスロープのみとなっています。 リビングは使い勝手のいいようにワンルームタイプにしています。 収納は壁面を有効活用し、仏壇も収納部分にスペースをとりすっきりした空間にと考え、提案しました。

車椅子の母が快適に暮らせるように考えられた動線と間取り空間

車椅子の母が快適に暮らせるように考えられた動線と間取り空間
建物のタイプ マンション
価格
築年数 11〜15年
工期(全体) 1ヶ月
面積  
その他採用機器・設備
施工地 大阪府 大阪市平野区
家族構成 母親・娘

お客さまの声

数年前にも御社でリフォームをしてもらったこともあり仕上がりの美しさは期待通りでした。 ただ母親の介護としても仕様するので美しさだけでなく機能と動線そして自然光をとりいれたいという要望も伝えました。 車椅子の母も毎日の生活が快適になり、明るい光の入る間取りにとても満足しています。

リフォーム会社のご提案

足が不自由な車椅子のお母様が入院先から帰ってこられるということで動線や設備はバリアフリーを考えて配置しました。 北側の個室がお母様の寝室ということで玄関サッシからの光を取り入れるよう寝室との壁にガラスブロックを使用し優しい光が入ってくるよう工夫しました。 また玄関には車椅子の回転スペースを設け壁際がデッドスペースにならないように壁面収納や玄関収納を設けてあります。 玄関からお母様の寝室の入口には車椅子のタイヤ傷にも強い店舗用の重歩行シートを使用し外からの汚れをカットし滑らかな歩行を可能にしています。 建具はすべてバリアフリー対応のもので段差は玄関からの緩いスロープのみとなっています。 リビングは使い勝手のいいようにワンルームタイプにしています。 収納は壁面を有効活用し、仏壇も収納部分にスペースをとりすっきりした空間にと考え、提案しました。

車椅子の母が快適に暮らせるように考えられた動線と間取り空間

車椅子の母が快適に暮らせるように考えられた動線と間取り空間
建物のタイプ マンション
価格
築年数 11〜15年
工期(全体) 1ヶ月
面積  
その他採用機器・設備
施工地 大阪府 大阪市平野区
家族構成 母親・娘

お客さまの声

数年前にも御社でリフォームをしてもらったこともあり仕上がりの美しさは期待通りでした。 ただ母親の介護としても仕様するので美しさだけでなく機能と動線そして自然光をとりいれたいという要望も伝えました。 車椅子の母も毎日の生活が快適になり、明るい光の入る間取りにとても満足しています。

リフォーム会社のご提案

足が不自由な車椅子のお母様が入院先から帰ってこられるということで動線や設備はバリアフリーを考えて配置しました。 北側の個室がお母様の寝室ということで玄関サッシからの光を取り入れるよう寝室との壁にガラスブロックを使用し優しい光が入ってくるよう工夫しました。 また玄関には車椅子の回転スペースを設け壁際がデッドスペースにならないように壁面収納や玄関収納を設けてあります。 玄関からお母様の寝室の入口には車椅子のタイヤ傷にも強い店舗用の重歩行シートを使用し外からの汚れをカットし滑らかな歩行を可能にしています。 建具はすべてバリアフリー対応のもので段差は玄関からの緩いスロープのみとなっています。 リビングは使い勝手のいいようにワンルームタイプにしています。 収納は壁面を有効活用し、仏壇も収納部分にスペースをとりすっきりした空間にと考え、提案しました。

車椅子の母が快適に暮らせるように考えられた動線と間取り空間

車椅子の母が快適に暮らせるように考えられた動線と間取り空間
建物のタイプ マンション
価格
築年数 11〜15年
工期(全体) 1ヶ月
面積  
その他採用機器・設備
施工地 大阪府 大阪市平野区
家族構成 母親・娘

お客さまの声

数年前にも御社でリフォームをしてもらったこともあり仕上がりの美しさは期待通りでした。 ただ母親の介護としても仕様するので美しさだけでなく機能と動線そして自然光をとりいれたいという要望も伝えました。 車椅子の母も毎日の生活が快適になり、明るい光の入る間取りにとても満足しています。

リフォーム会社のご提案

足が不自由な車椅子のお母様が入院先から帰ってこられるということで動線や設備はバリアフリーを考えて配置しました。 北側の個室がお母様の寝室ということで玄関サッシからの光を取り入れるよう寝室との壁にガラスブロックを使用し優しい光が入ってくるよう工夫しました。 また玄関には車椅子の回転スペースを設け壁際がデッドスペースにならないように壁面収納や玄関収納を設けてあります。 玄関からお母様の寝室の入口には車椅子のタイヤ傷にも強い店舗用の重歩行シートを使用し外からの汚れをカットし滑らかな歩行を可能にしています。 建具はすべてバリアフリー対応のもので段差は玄関からの緩いスロープのみとなっています。 リビングは使い勝手のいいようにワンルームタイプにしています。 収納は壁面を有効活用し、仏壇も収納部分にスペースをとりすっきりした空間にと考え、提案しました。

車椅子の母が快適に暮らせるように考えられた動線と間取り空間

車椅子の母が快適に暮らせるように考えられた動線と間取り空間
建物のタイプ マンション
価格
築年数 11〜15年
工期(全体) 1ヶ月
面積  
その他採用機器・設備
施工地 大阪府 大阪市平野区
家族構成 母親・娘

お客さまの声

数年前にも御社でリフォームをしてもらったこともあり仕上がりの美しさは期待通りでした。 ただ母親の介護としても仕様するので美しさだけでなく機能と動線そして自然光をとりいれたいという要望も伝えました。 車椅子の母も毎日の生活が快適になり、明るい光の入る間取りにとても満足しています。

リフォーム会社のご提案

足が不自由な車椅子のお母様が入院先から帰ってこられるということで動線や設備はバリアフリーを考えて配置しました。 北側の個室がお母様の寝室ということで玄関サッシからの光を取り入れるよう寝室との壁にガラスブロックを使用し優しい光が入ってくるよう工夫しました。 また玄関には車椅子の回転スペースを設け壁際がデッドスペースにならないように壁面収納や玄関収納を設けてあります。 玄関からお母様の寝室の入口には車椅子のタイヤ傷にも強い店舗用の重歩行シートを使用し外からの汚れをカットし滑らかな歩行を可能にしています。 建具はすべてバリアフリー対応のもので段差は玄関からの緩いスロープのみとなっています。 リビングは使い勝手のいいようにワンルームタイプにしています。 収納は壁面を有効活用し、仏壇も収納部分にスペースをとりすっきりした空間にと考え、提案しました。

車椅子の母が快適に暮らせるように考えられた動線と間取り空間

車椅子の母が快適に暮らせるように考えられた動線と間取り空間
建物のタイプ マンション
価格
築年数 11〜15年
工期(全体) 1ヶ月
面積  
その他採用機器・設備
施工地 大阪府 大阪市平野区
家族構成 母親・娘

お客さまの声

数年前にも御社でリフォームをしてもらったこともあり仕上がりの美しさは期待通りでした。 ただ母親の介護としても仕様するので美しさだけでなく機能と動線そして自然光をとりいれたいという要望も伝えました。 車椅子の母も毎日の生活が快適になり、明るい光の入る間取りにとても満足しています。

リフォーム会社のご提案

足が不自由な車椅子のお母様が入院先から帰ってこられるということで動線や設備はバリアフリーを考えて配置しました。 北側の個室がお母様の寝室ということで玄関サッシからの光を取り入れるよう寝室との壁にガラスブロックを使用し優しい光が入ってくるよう工夫しました。 また玄関には車椅子の回転スペースを設け壁際がデッドスペースにならないように壁面収納や玄関収納を設けてあります。 玄関からお母様の寝室の入口には車椅子のタイヤ傷にも強い店舗用の重歩行シートを使用し外からの汚れをカットし滑らかな歩行を可能にしています。 建具はすべてバリアフリー対応のもので段差は玄関からの緩いスロープのみとなっています。 リビングは使い勝手のいいようにワンルームタイプにしています。 収納は壁面を有効活用し、仏壇も収納部分にスペースをとりすっきりした空間にと考え、提案しました。

このようなリフォームを実現できる
お近くのリフォーム会社を、複数社ご紹介!

よく似た事例

最近見た事例

このようなリフォームを実現できる
お近くのリフォーム会社を、複数社ご紹介!

事例一覧へ戻る
ページの
先頭へ