比べて、選べる。リフォーム会社紹介サイト「ホームプロ」

会員ページでは、お申込みいただいた内容に対応できるリフォーム会社を紹介しています。各社の会社情報、評価・クチコミの閲覧や、メッセージのやりとり(商談)ができます。

閉じる
  1. リフォームTOP
  2. 大阪府
  3. 八尾市
  4. 株式会社Midori(ミドリ)
  5. 回遊動線が生み出す笑顔の見える暮らし。
事例一覧へ戻る

回遊動線が生み出す笑顔の見える暮らし。

建物のタイプ マンション 価格 715万円
築年数 不明 工期 2ヶ月
竣工年月日 構造 RC造
施工地 大阪府 堺市東区 リフォーム箇所 キッチントイレ洗面
家族構成 4人

詳細情報

[テーマ]間取り変更・スケルトン 、 リノベーション 、 明るく広々

お客さまのご要望

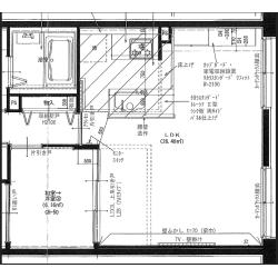
独立した和室をリビングとつなげて、広く使いたいとご要望でした。

リフォーム会社のご提案

和室とリビング、そしてキッチンをひとつにつなげて回遊同線を意識しつつ解放感のある空間に変更することをご提案いたしました。

Before

Before

和室の入り口がリビング側しかないため、和室の有効活用が難しい状態でした。キッチンは閉そく感がありました。

After

After

廊下からも和室に入れるように変更しました。また、キッチンをぐるりと一周することが出来る回遊動線はとても便利で解放感があり、お子さんたちも喜んでいると伺いました。

ホワイトカラーが余白を生む清潔感あふれるキッチン

ホワイトカラーが余白を生む清潔感あふれるキッチン
建物のタイプ マンション
価格 260万円(単独工事をする場合の概算です)
築年数 不明
工期(全体) 2ヶ月
面積  
その他採用機器・設備
施工地 大阪府 堺市東区
家族構成 4人

詳細情報:

[テーマ] 間取り変更・スケルトン 、 リノベーション 、 明るく広々 / メーカー:指定なし / レイアウト:指定なし / [扉]カラー:白

リフォーム会社のご提案

和室とリビング、そしてキッチンをひとつにつなげて回遊同線を意識しつつ解放感のある空間に変更することをご提案いたしました。

Before

Before

キッチンが閉鎖的で、LDKを有効的に活用できるよう にとのご希望でした。

After

After

キッチンは対面式から家事動線を考慮した2列型に移設を行い、メーカーにはタカラスタンダードのトレーシアをご提案しました。

Before

Before

After

After

キッチンの向きを変えて回遊動線をつくり和室は縮小、LDKを拡張させました。

ブルーのアクセントクロスが映えるトイレ

ブルーのアクセントクロスが映えるトイレ
建物のタイプ マンション
価格 45万円(単独工事をする場合の概算です)
築年数 不明
工期(全体) 2ヶ月
面積  
その他採用機器・設備
施工地 大阪府 堺市東区
家族構成 4人

詳細情報:

[テーマ] 間取り変更・スケルトン 、 省エネ 、 収納充実 / メーカー:LIXIL(旧INAX他) / 商品名:リフォレ / 種別:指定なし / カラー:白

リフォーム会社のご提案

和室とリビング、そしてキッチンをひとつにつなげて回遊同線を意識しつつ解放感のある空間に変更することをご提案いたしました。

Before

Before

After

After

色の統一感で魅せる機能的で美しい洗面室

色の統一感で魅せる機能的で美しい洗面室
建物のタイプ マンション
価格 40万円(単独工事をする場合の概算です)
築年数 不明
工期(全体) 2ヶ月
面積  
その他採用機器・設備
施工地 大阪府 堺市東区
家族構成 4人

詳細情報:

[テーマ] 全面改装 、 バリアフリー 、 収納充実 / メーカー:指定なし / 間口:指定なし / カラー:白 / カラー:グレー

お客さまのご要望

洗面台の中にしか収納ができないのでもっと収納を増やしたいです。

リフォーム会社のご提案

洗面台横の壁を取り払い、隣室のクローゼットの一部を洗面室側からの可動棚に変更しました。

Before

Before

収納が少なく感じました。また、洗濯したものをちょっと干すバーがありませんでした。

After

After

収納をたっぷりに。天井にハンギングバーを設置することで洗濯時のストレスを大幅に軽減しました。洗面台は清掃しやすいタカラスタンダードのファミーユを採用しました。

Before

Before

After

After

このようなリフォームを実現できる
お近くのリフォーム会社を、複数社ご紹介!

よく似た事例

最近見た事例

このようなリフォームを実現できる
お近くのリフォーム会社を、複数社ご紹介!

事例一覧へ戻る
ページの
先頭へ