比べて、選べる。リフォーム会社紹介サイト「ホームプロ」

会員ページでは、お申込みいただいた内容に対応できるリフォーム会社を紹介しています。各社の会社情報、評価・クチコミの閲覧や、メッセージのやりとり(商談)ができます。

閉じる
  1. リフォームTOP
  2. 愛知県
  3. 名古屋市
  4. 名古屋市中区
  5. ミサワリフォーム中部株式会社
  6. ライフスタイルに合わせたリフォーム
事例一覧へ戻る

ライフスタイルに合わせたリフォーム

建物のタイプ マンション 価格 1,030万円
築年数 30年以上 工期 2ヶ月
竣工年月日 構造 RC造
施工地 愛知県 名古屋市中区 リフォーム箇所 リビング洋室
家族構成 夫婦、子供2人

詳細情報

[テーマ]間取り変更・スケルトン 、 リノベーション 、 デザイン重視

お客さまのご要望

4人家族が快適に暮らせるようにしてほしいというご要望です。さらに今は小さいお子様の成長と共に変化できる間取りをご希望でした。

リフォーム会社のご提案

広いLDK、パントリー、ウォークインクローゼット、主寝室、子供室2室をしつらえました。水廻りも改装したフルリノベーションをご提案しました。 ご家族がメインで集うLDKはモノトーンで統一したモダンなインテリアとし、主寝室はブルーグレーのドアとクロスをアクセントにしています。 洗面・浴室・トイレはダークブラウンを基調にした落ち着いた雰囲気をご提案しました。

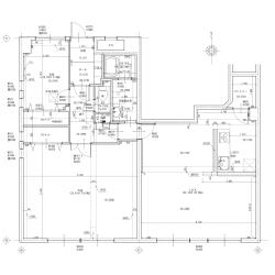
Before

Before

中古マンションの購入をきっかけにリノベーションを計画されました。 中古マンションは少し改装されていましたが、途中で改装が終わっている状態でした。

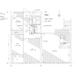
After

After

4人家族が快適に暮らせるよう工夫しました。広いLDK、パントリー、お子様の部屋を2室用意。ウォークインクローゼットをバルコニー側にしつらえ洗濯導線を短くしてあります。水廻りの基本的な配置は変わっていませんが使い勝手が良くなるよう壁の位置を移動。インテリアカラーを部屋ごとに変化させておりLDKはモノトーン、寝室はブルーグレー、お子様の部屋はソライロとピンク。それらをつなぐドアはブルーグレーで統一。

サークル動線を取り入れたLDK

サークル動線を取り入れたLDK
建物のタイプ マンション
価格 412万円(単独工事をする場合の概算です)
築年数 30年以上
工期(全体) 2ヶ月
面積 42.20m²
その他採用機器・設備 LDK含めた施工範囲です。
施工地 愛知県 名古屋市中区
家族構成 夫婦、子供2人

詳細情報:

[テーマ] 間取り変更・スケルトン 、 リノベーション 、 デザイン重視 / 間取り変更:有り / 素材:指定なし / 広さ:21畳〜(約34㎡〜) / その他採用機器・設備:LDK含めた施工範囲です。

お客さまのご要望

リビングは広々として、モノトーンですっきりされたいというご要望。 100インチのテレビを壁掛けにし、キッチンの手元をリビングから見えないようにされたいとの事でした。

リフォーム会社のご提案

100インチのテレビを壁掛けにする部分はグレーの大判のエコカラットを貼り壁の裏には、後から配線できるよう配管を埋め込みました。 キッチンの手元がリビングから見えないよう高さ105cmのグラックカウンターをしつらえてあります。キッチンはLIXIL Noct ブラックスタッコです。

Before

Before

キッチンと区切られたLDK。

After

After

リビングとキッチンの間の壁を取りサークル動線に。 リビングのアクセント壁はエコカラット張り。大型壁掛けテレビが設置できるよう配線をエコカラットの裏側に入れてあります。

Before

Before

少し窮屈な印象のキッチン。

After

After

上吊戸棚や腰壁をなくし、すっきり開放的にしました。

ウォークインクローゼットを備えた主寝室

ウォークインクローゼットを備えた主寝室
建物のタイプ マンション
価格 180万円(単独工事をする場合の概算です)
築年数 30年以上
工期(全体) 2ヶ月
面積 19.00m²
その他採用機器・設備 ウォークインクローゼット
施工地 愛知県 名古屋市中区
家族構成 夫婦、子供2人

詳細情報:

[テーマ] 間取り変更・スケルトン 、 リノベーション 、 デザイン重視 / 用途:指定なし / 間取り変更:有り / 素材:指定なし / 広さ:11畳〜14畳(〜約23㎡) / その他採用機器・設備:ウォークインクローゼット

お客さまのご要望

寝室は収納を多くとって欲しいとのご要望。少し遊び心のある 雰囲気にされたいご様子でした。 また将来的にはお子様が個室で過ごせるようにされたいとのご要望がありました。

リフォーム会社のご提案

ウォークインクローゼットを主寝室の奥にしつらえ、お子様が成長されるまでは洋服類をバルコニー近くで収納できるようにして、洗濯導線を短くしました。 お子様の部屋は、ソライロの壁紙をアクセントにした部屋と 星をアクセントにした部屋があります。

Before

Before

約20帖の広すぎる洋室。

After

After

寝室と子供部屋に区切り暮らしやすくリフォーム。大容量のウォークインクローゼットも作りました。

このようなリフォームを実現できる
お近くのリフォーム会社を、複数社ご紹介!

よく似た事例

最近見た事例

このようなリフォームを実現できる
お近くのリフォーム会社を、複数社ご紹介!

事例一覧へ戻る
ページの
先頭へ